東京メトロ千代田線「根津」駅徒歩3分!6階角部屋につき採光・眺望良好!
【特徴・設備】
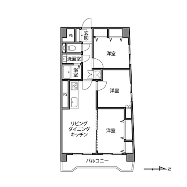
■ファミリーに最適な3LDKタイプ
■各居室に収納付き、共用スペースにも収納有り
■LDと隣接した洋室の引き戸を開放することで広々LDKとしても利用可能
■3口コンロ、食器洗い乾燥機
■追焚機能、浴室乾燥機、オートバス
■温水洗浄便座
■24時間ゴミ出し可
■エレベーター
【リフォーム履歴】
※2012年実施
□浴室、キッチン、洗面台、トイレ交換
□フローリング貼替 ・建具交換 等
※2022年2月実施
□クロス貼替
□ガスコンロ交換
