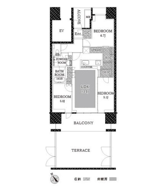
1階部分・南西向き!3LDK+2WIC+SIC+テラス付!
【特徴・設備】
■531戸の大規模レジデンス、家族に寄り添う街「新江古田」
■クロスを新たに張り替え、高級感のある内装に仕上げました。
■広々としたテラスも魅力のひとつで、ゆったりとした時間をお過ごしいただけます。
■人気の対面式キッチン
■ディスポーザーも備えており、日々の暮らしをサポートします。
■ペット飼育可(細則有)
■ウォークインクローゼット2ヶ所・シューズインクローゼット
■リビングダイニングに床暖房設置
■1階部分につき階下へ気兼ねなく暮らせます
【リノベーション内容】※令和7年6月13日完了
□全室クロス張替
□キッチンコンロ・水栓交換
□洗面化粧台水栓交換
□ユニットバス水栓・鏡交換
□トイレ交換など





