6階部分、南東向き住戸!新規リフォーム物件!
【特徴・設備】
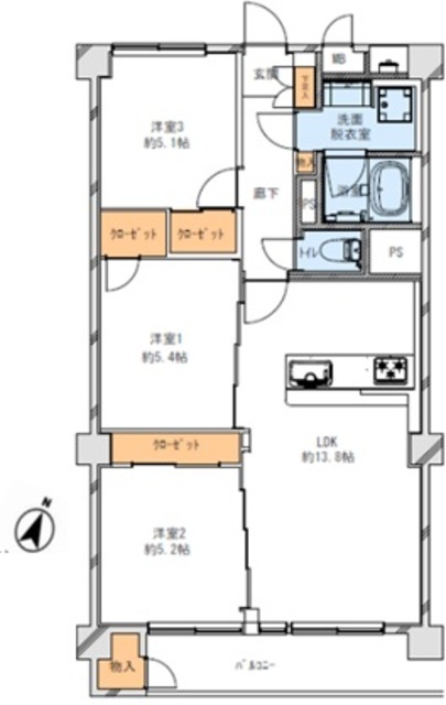
■LDK・洋室1は窓あり
■家具の配置がしやすい間取り
■カウンターキッチン
■3口ガスコンロ
■収納あり
■独立洗面台
■室内洗濯置き場あり
■アフターサービス保証付
【新規リフォーム内容】※2026年1月末完了予定
□システムキッチン新規交換
□ユニットバス新規交換
□洗面化粧台新規交換
□トイレ・防水パン新規交換
□配管全交換
□フローリング・フロアタイル貼替
□クロス全室貼替
□照明器具新規設置
□建具・玄関収納交換
□室内クリーニング 等





