7階部分、南向き住戸!新規内装フルリフォーム物件!
【特徴・設備】
■ペット飼育可
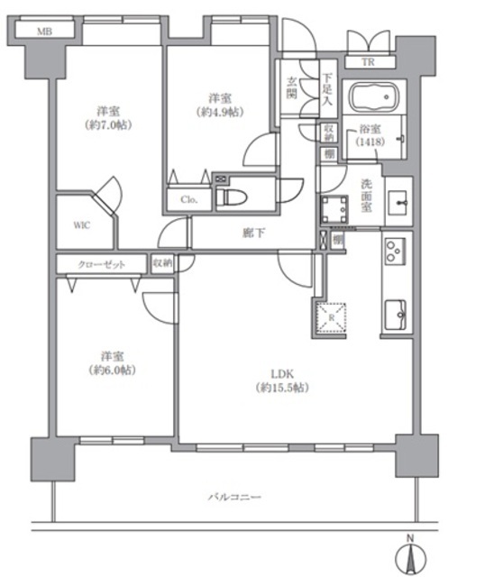
■全室窓あり
■家具の配置がしやすい間取り
■システムキッチン
■3口ガスコンロ
■WICがあり収納豊富
■独立洗面台
■室内洗濯置き場あり
【リフォーム内容】※2024年12月末完了
□システムキッチン交換
□ユニットバス交換
□給水給湯管・排水管交換
□洗面化粧台交換
□防水パン交換
□洗濯機能付トイレ交換
□建具交換
□床暖房交換
□フローリング張替
□壁・天井クロス張替
□フロアタイル張替
□網戸張替・一部交換
□吊戸棚取付
□下足入れ交換
□分電盤交換
□スイッチパネル交換
□照明器具交換
□ダイノック施工
□レースカーテン取付
□ハウスクリーニング 等
