メイフェアパークス溝の口 9階

  • 総合トップ
  • 中古マンション
  • 一戸建て・土地
  • 投資・収益物件
  • 売りたい[売却査定]
  • 貸したい[賃料査定]

メイフェアパークス溝の口 9階

価格
7,480
毎月の返済額
(目安)
loansimulationIcon
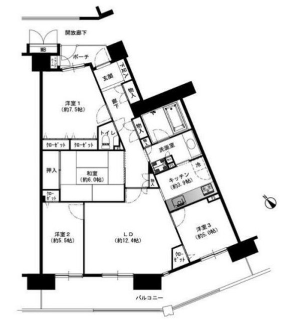
築年月 2000年11月 間取り 4LDK
専有面積 93.91m2 所在階 9階
方角 南西
所在地 神奈川県川崎市高津区久本2-4-13
交通 東急田園都市線「溝の口駅」徒歩15分
東急大井町線「溝の口駅」徒歩15分

9階部分、南西向き住戸!ペット飼育可!

【特徴・設備】
■LDK・洋室1・2は窓あり
■和室あり
■家具の配置がしやすい間取り
■システムキッチン
■3口ガスコンロ
■収納あり
■独立洗面台
■室内洗濯置き場あり

2冠達成 恵比寿不動産は物件数No.1 中古マンション数No.1

メイフェアパークス溝の口 9階の
購入に関するお問い合わせはこちらから

contact us

恵比寿不動産までお気軽にお問い合わせください

お電話でのお問い合わせはこちら:03-6421-0543 10:00 - 19:00 (水曜定休)
恵比寿不動産店舗情報渋谷区東3-25-11 TOKYU REIT恵比寿ビル4階
オフィス内観写真
オフィス外観写真
リフォーム無料お見積りサービス

物件概要

物件名 メイフェアパークス溝の口
所在地
交通
問合せ番号 12509-9F
物件特徴 タワーマンション、大規模マンション
物件条件 ペット可、楽器可
価格 7,480 管理費 14,000円/月
修繕積立金 24,040円/月 その他費用 メイフェアクラブ会費200円/月
間取り 4LDK 方角 南西
専有面積 93.91m2 バルコニー面積 21.61m2
建物構造 SRC 築年月 2000年11月
総戸数 215戸 総階数 地上20階 
駐車場 有 月額11,000円から21,000円
バイク置き場 有 月額1,000円
駐輪場 有 月額500円(1台目無償) 土地権利 所有権
用途地域 工業地域 管理形態 日勤管理
管理会社 株式会社東急コミュニティー 分譲会社 大和土地建物株式会社・東洋不動産株式会社・相鉄不動産株式会社
施工会社 鹿島建設株式会社・長谷工コーポレーション株式会社 設計会社 -
取引態様 仲介 小学校学区 -
周辺情報 ■まいばすけっと川崎末長2丁目店 約700m
■イトーヨーカドー溝ノ口店    約1300m
■セブンーイレブン川崎末長店   約550m
■久本二丁目公園         約20m
■川崎市立久本小学校       約1400m
■川崎市立高津中学校       約1500m
現況 空室 入居/引渡時期 即時
更新日 2025年11月28日

備考

部屋設備

  • バス・トイレ別
  • 独立洗面台
  • 追い焚き
  • 温水洗浄便座
  • 浴室乾燥機
  • システムキッチン
  • 食器洗浄機
  • 浄水器
  • ガスコンロ
  • エアコン
  • フローリング
  • 南向き

建物設備

  • エレベーター
  • オートロック
  • 宅配ボックス
  • TVドアホン
  • 駐車場
  • バイク置き場
  • 駐輪場
  • ラウンジ
  • キッズルーム
  • ゲストルーム
  • パーティールーム
  • 24時間ゴミ出し可
  • 管理人常駐
  • 防犯カメラ
  • ペット可
  • 楽器可

メイフェアパークス溝の口 9階のローンシミュレーション

借入金額
7,480
頭金
0万円
毎月の返済額
頭金
  • 支払い額万円※半角数字
金利
  • %※半角数字
返済年数
  • ※元利均等返済方式、最大優遇の場合で計算しています。
  • ※融資には個別審査があり、審査結果により、貸出条件(金利・貸出期間・借入額)が異なる場合がございます。
  • ※不動産のご購入に際しましては物件価格以外にその他諸費用が必要となります。
    諸費用に関する詳細につきましてはお問い合わせ下さいませ。

周辺地図

※建物周辺情報はGoogleMapを使用しており、実際とは若干異なる場合がございます。

掲載情報について

  • ※本掲載情報と現況に差異がある場合、現況を優先いたします。
  • ※掲載物件は売却済あるいは売出中止となる場合もあります。
  • ※掲載写真やパース(絵)、または間取図に描かれている家具や車などは、価格に含まれておりません。また、過去に撮影したものをそのまま利用している場合があり、名称・外観・背景等、実際のものとは異なる場合がございます。予めご了承ください。
  • ※仲介物件には所定の仲介手数料(消費税等相当額を含みます)が必要です。
2冠達成 恵比寿不動産は物件数No.1 中古マンション数No.1

メイフェアパークス溝の口 9階の
購入に関するお問い合わせはこちらから

contact us

恵比寿不動産までお気軽にお問い合わせください

お電話でのお問い合わせはこちら:03-6421-0543 10:00 - 19:00 (水曜定休)
恵比寿不動産店舗情報渋谷区東3-25-11 TOKYU REIT恵比寿ビル4階
オフィス内観写真
オフィス外観写真

部屋一覧

売出し待ちお知らせ希望 未公開情報の確認 お問い合わせ
所在階 間取り 専有面積 価格 お気に入り お問い合わせ 詳細
9F 4LDK 93.91m2 7,480
お問い合わせ
詳細を見る

最近見た物件

ワールドタワーレジデンスおすすめ画像

ワールドタワーレジデンス 42階

***

  • 東京都港区浜松町2-3-9
  • JR山手線「浜松町駅」徒歩2分
    都営大江戸線「大門駅」徒歩2分
  • 1LDK  63.90m2
画像準備中

ライオンズマンション馬事公苑第2 1階

3,180

  • 東京都世田谷区弦巻5-9-12
  • 東急田園都市線「桜新町駅」徒歩14分
    東急世田谷線「上町駅」徒歩14分
  • 1LDK  36.99m2
トキワパレスおすすめ画像

トキワパレス 9階

***

  • 東京都新宿区下落合1-1-1
  • JR山手線「高田馬場駅」徒歩3分
    東京メトロ東西線「高田馬場駅」徒歩3分
  • 2LDK  60.50m2
離宮ハイムおすすめ画像

離宮ハイム 3階

***

  • 東京都新宿区若葉1-22-15
  • 東京メトロ南北線「四ツ谷駅」徒歩10分
    JR中央・総武線「信濃町駅」徒歩12分
  • 2LDK  57.93m2
画像準備中

エヴァーグリーン錦糸町 1階

***

  • 東京都墨田区業平4-4-1
  • 東京メトロ半蔵門線「押上(スカイツリー前)駅」徒歩5分
    東京メトロ半蔵門線「錦糸町駅」徒歩14分
  • 2SLDK  59.36m2
画像準備中

グランイーグル御幸公園 4階

***

  • 神奈川県川崎市幸区東古市場91-6
  • JR京浜東北線「川崎駅」徒歩分
    JR湘南新宿ライン「新川崎駅」徒歩23分
  • 2SLDK  63.04m2