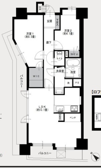
14階部分、南西向き角部屋!新規リノベーション物件!
【特徴・設備】
■ペット飼育可
■全室窓あり
■二面採光
■家具の配置がしやすい間取り
■システムキッチン
■3口ガスコンロ
■WICがあり収納豊富
■独立洗面台
■室内洗濯置き場あり
■アフターサービス保証付
【リノベーション内容】
□給湯器交換
□システムキッチン交換
□ユニットバス交換
□洗面台交換
□トイレ交換
□全室クロス張替
□全フローリング張替
□全建具交換
□フロアタイル張替(玄関)
□CF張替
□下足入れ交換
□洗濯水栓器具交換
□防水パン交換
□スイッチパネル設置
□ダウンライト設置
□照明器具設置
□玄関人感センサー設置 等





