トーア駒込マンション 3階

  • 総合トップ
  • 中古マンション
  • 一戸建て・土地
  • 投資・収益物件
  • 売りたい[売却査定]
  • 貸したい[賃料査定]

トーア駒込マンション 3階
新着

価格
7,998
毎月の返済額
(目安)
loansimulationIcon
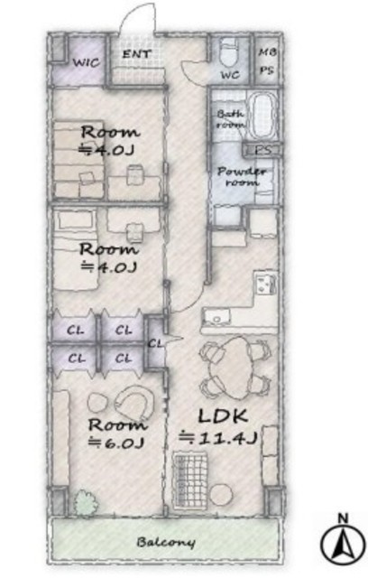
築年月 1978年4月 間取り 3LDK+WIC
専有面積 66.42m2 所在階 3階
方角
所在地 東京都豊島区駒込1-10-13
交通 JR山手線「駒込駅」徒歩4分
東京メトロ南北線「駒込駅」徒歩4分

3階部分、南向き住戸!新規リノベーション物件!

【特徴・設備】
■ペット飼育可
■LDK・洋室1は窓あり
■家具の配置がしやすい間取り
■L字型カウンターキッチン
■3口ガスコンロ
■WICがあり収納豊富
■独立洗面台
■室内洗濯置き場あり
■アフターサービス保証付

【新規リノベーション内容】
□キッチン(食器洗い乾燥機付)
□ユニットバス
□洗面化粧台
□トイレ
□クロス
□コンセント・スイッチ
□和室から洋室へ変更
□照明器具
□建具交換
□その他経年劣化による消耗品等の交換
□給湯器新規交換
□間取り変更
□ハウスクリーニング 等

2冠達成 恵比寿不動産は物件数No.1 中古マンション数No.1

トーア駒込マンション 3階の
購入に関するお問い合わせはこちらから

contact us

恵比寿不動産までお気軽にお問い合わせください

お電話でのお問い合わせはこちら:03-6421-0543 10:00 - 19:00 (水曜定休)
恵比寿不動産店舗情報渋谷区東3-25-11 TOKYU REIT恵比寿ビル4階
オフィス内観写真
オフィス外観写真
リフォーム無料お見積りサービス

物件概要

物件名 トーア駒込マンション
所在地
交通
問合せ番号 12573-306
物件特徴 ヴィンテージ、大規模マンション
物件条件 ペット可
価格 7,998 管理費 16,000円/月
修繕積立金 15,910円/月 その他費用 -
間取り 3LDK 方角
専有面積 66.42m2 バルコニー面積 6.99m2
建物構造 SRC 築年月 1978年4月
総戸数 138戸 総階数 地上12階 
駐車場 月額22,000円~27,000円 バイク置き場 -
駐輪場 あり 土地権利 所有権
用途地域 第一種住居地域 管理形態 日勤管理
管理会社 日本ハウズイング株式会社 分譲会社 東亜起業
施工会社 鉄建建設 設計会社 -
取引態様 仲介 小学校学区 -
周辺情報 ■マルエツプチ駒込中里一丁目店(スーパー)まで約2分
■ローソン駒込一丁目店(コンビニ)まで約2分
■ユニバーサルドラッグ駒込店(ドラッグストア)まで約2分
現況 空室 入居/引渡時期 即時
更新日 2026年2月12日

備考

部屋設備

  • バス・トイレ別
  • 独立洗面台
  • 追い焚き
  • 温水洗浄便座
  • 浴室乾燥機
  • システムキッチン
  • カウンターキッチン
  • 食器洗浄機
  • 浄水器
  • ガスコンロ
  • 床暖房
  • エアコン
  • ウォークインクローゼット
  • フローリング
  • 南向き
  • リノベーション

建物設備

  • エレベーター
  • 駐車場
  • 駐輪場
  • 閑静な住宅街
  • ペット可

トーア駒込マンション 3階のローンシミュレーション

借入金額
7,998
頭金
0万円
毎月の返済額
頭金
  • 支払い額万円※半角数字
金利
  • %※半角数字
返済年数
  • ※元利均等返済方式、最大優遇の場合で計算しています。
  • ※融資には個別審査があり、審査結果により、貸出条件(金利・貸出期間・借入額)が異なる場合がございます。
  • ※不動産のご購入に際しましては物件価格以外にその他諸費用が必要となります。
    諸費用に関する詳細につきましてはお問い合わせ下さいませ。

周辺地図

※建物周辺情報はGoogleMapを使用しており、実際とは若干異なる場合がございます。

掲載情報について

  • ※本掲載情報と現況に差異がある場合、現況を優先いたします。
  • ※掲載物件は売却済あるいは売出中止となる場合もあります。
  • ※掲載写真やパース(絵)、または間取図に描かれている家具や車などは、価格に含まれておりません。また、過去に撮影したものをそのまま利用している場合があり、名称・外観・背景等、実際のものとは異なる場合がございます。予めご了承ください。
  • ※仲介物件には所定の仲介手数料(消費税等相当額を含みます)が必要です。
2冠達成 恵比寿不動産は物件数No.1 中古マンション数No.1

トーア駒込マンション 3階の
購入に関するお問い合わせはこちらから

contact us

恵比寿不動産までお気軽にお問い合わせください

お電話でのお問い合わせはこちら:03-6421-0543 10:00 - 19:00 (水曜定休)
恵比寿不動産店舗情報渋谷区東3-25-11 TOKYU REIT恵比寿ビル4階
オフィス内観写真
オフィス外観写真

部屋一覧

売出し待ちお知らせ希望 未公開情報の確認 お問い合わせ
所在階 間取り 専有面積 価格 お気に入り お問い合わせ 詳細
新着
3F
リノベ
3LDK
66.42m2 7,998
お問い合わせ
詳細を見る
新着
4F
1LDK 31.84m2 3,980
お問い合わせ
詳細を見る