5階部分、東向き角部屋!
【特徴・設備】
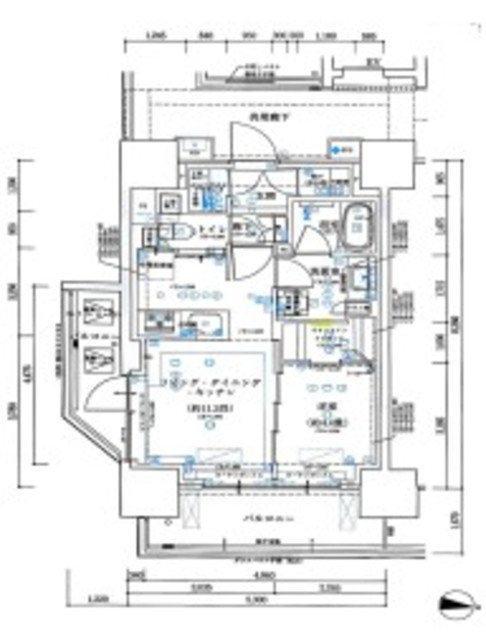
■二面バルコニー
■全室窓あり
■家具の配置がしやすい間取り
■カウンターキッチン
■3口ガスコンロ
■WICがあり収納豊富
■独立洗面台
■室内洗濯置き場あり
| 価格 | 1億2,800万円 |
毎月の返済額 (目安) |
|
|---|---|---|---|
| 築年月 | 2023年5月 | 間取り | 1LDK+SIC+WIC |
| 専有面積 | 43.89m2 | 所在階 | 5階 |
| 方角 | 東 | ||
| 所在地 | 東京都新宿区舟町3-1 | ||
| 交通 | 東京メトロ丸ノ内線「四谷三丁目駅」徒歩2分 都営新宿線「曙橋駅」徒歩6分 |
||
【特徴・設備】
■二面バルコニー
■全室窓あり
■家具の配置がしやすい間取り
■カウンターキッチン
■3口ガスコンロ
■WICがあり収納豊富
■独立洗面台
■室内洗濯置き場あり

| 物件名 | ブリリア四谷三丁目 | ||
|---|---|---|---|
| 所在地 | 東京都新宿区舟町3-1 | ||
| 交通 |
東京メトロ丸ノ内線「四谷三丁目駅」徒歩2分 都営新宿線「曙橋駅」徒歩6分 JR中央・総武線「四ツ谷駅」徒歩11分 東京メトロ南北線「四ツ谷駅」徒歩11分 |
||
| 問合せ番号 | 12697-504 | ||
| 物件特徴 | - | ||
| 物件条件 | - | ||
| 価格 | 1億2,800万円 | 管理費 | 15,190円/月 |
| 修繕積立金 | 5,670円/月 | その他費用 | - |
| 間取り | 1LDK | 方角 | 東 |
| 専有面積 | 43.89m2 | バルコニー面積 | 13m2 |
| 建物構造 | RC | 築年月 | 2023年5月 |
| 総戸数 | 57戸 | 総階数 | 地上13階 |
| 駐車場 | 月額38,000円 | バイク置き場 | - |
| 駐輪場 | - | 土地権利 | 所有権 |
| 用途地域 | 商業地域 | 管理形態 | 日勤管理 |
| 管理会社 | (株)東京建物アメニティサポート | 分譲会社 | 東京建物 |
| 施工会社 | 不二建設 | 設計会社 | - |
| 取引態様 | 仲介 | 小学校学区 | 四谷小学校 |
| 周辺情報 | ■まいばすけっと四谷三丁目駅東店(スーパー)まで約1分 ■ファミリーマート四谷三丁目駅前店(コンビニ)まで約1分 ■スギドラッグ四谷三丁目店(ドラッグストア)まで約2分 |
||
| 現況 | 空室 | 入居/引渡時期 | 即時 |
| 更新日 | 2025年12月19日 | ||
| 頭金 |
|
|---|---|
| 金利 |
|
| 返済年数 | 年 |
※建物周辺情報はGoogleMapを使用しており、実際とは若干異なる場合がございます。
掲載情報について

外観 物件画像1