17階部分、西向き角部屋!新規内装リノベーション物件!
【特徴・設備】
■ペット飼育可
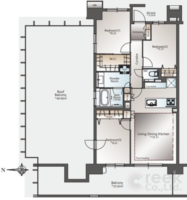
■ルーフバルコニーあり
■全室窓あり
■ビューバス
■家具の配置がしやすい間取り
■カウンターキッチン
■3口ガスコンロ
■床暖房完備
■独立洗面台
■室内洗濯置き場あり
■アフターサービス保証付
【新規リノベーション内容】
□システムキッチン交換
□ユニットバス交換
□洗面化粧台交換
□トイレ交換
□洗濯機パン交換
□給湯器交換
□フローリング張替
□フロアタイル貼替
□クロス貼替
□建具・収納交換
□照明器具交換
□エアコン1台新設 等
