6階部分、北西向き角部屋!新規リノベーション物件!
【特徴・設備】
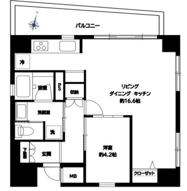
■全室窓あり
■二面採光
■ビューバス
■家具の配置がしやすい間取り
■システムキッチン
■3口ガスコンロ
■収納あり
■独立洗面台
■室内洗濯置き場あり
■アフターサービス保証付
【新規リノベーション内容】
□ユニットバス(追焚・換気乾燥暖房機付)
□システムキッチン(食洗機付)
□フローリング・フロアタイル張替
□建具
□収納
□照明器具取付
□温水洗浄便座付トイレ
□全室天井・壁クロス
□給湯器
□給水給湯管(専有部分)
□防水パン
□クリーニング 等





