11階部分、西向き角部屋!ペット飼育可!
【特徴・設備】
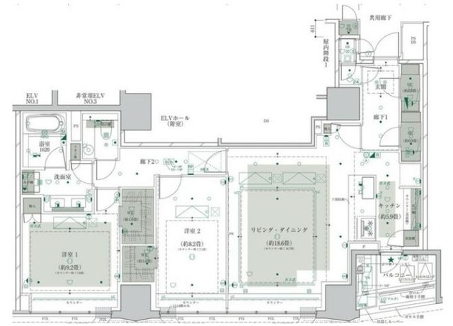
■全室窓あり
■家具の配置がしやすい間取り
■カウンターキッチン
■3口ガスコンロ
■収納豊富
■室内洗濯置き場あり
| 価格 | 5億9,880万円 |
毎月の返済額 (目安) |
|
|---|---|---|---|
| 築年月 | 2024年9月 | 間取り | 2LDK |
| 専有面積 | 104.53m2 | 所在階 | 11階 |
| 方角 | 西 | ||
| 所在地 | 東京都千代田区三番町26-1 | ||
| 交通 | 東京メトロ半蔵門線「半蔵門駅」徒歩8分 都営新宿線「市ヶ谷駅」徒歩9分 |
||
【特徴・設備】
■全室窓あり
■家具の配置がしやすい間取り
■カウンターキッチン
■3口ガスコンロ
■収納豊富
■室内洗濯置き場あり

| 物件名 | ザ・パークハウスグラン三番町26 | ||
|---|---|---|---|
| 所在地 | 東京都千代田区三番町26-1 | ||
| 交通 |
東京メトロ半蔵門線「半蔵門駅」徒歩8分 都営新宿線「市ヶ谷駅」徒歩9分 |
||
| 問合せ番号 | 13359-11F | ||
| 物件特徴 | 大規模マンション | ||
| 物件条件 | - | ||
| 価格 | 5億9,880万円 | 管理費 | 66,170円/月 |
| 修繕積立金 | 11,500円/月 | その他費用 | - |
| 間取り | 2LDK | 方角 | 西 |
| 専有面積 | 104.53m2 | バルコニー面積 | 6.25m2 |
| 建物構造 | RC | 築年月 | 2024年9月 |
| 総戸数 | 102戸 | 総階数 | 地上17階 地下2階 |
| 駐車場 | 来客用駐車スペースあり | バイク置き場 | り |
| 駐輪場 | あり | 土地権利 | 所有権 |
| 用途地域 | 第二種住居地域 | 管理形態 | 日勤管理 |
| 管理会社 | 三菱地所コミュニティ | 分譲会社 | 三菱地所レジデンス、 三菱倉庫 |
| 施工会社 | 東急建設 | 設計会社 | - |
| 取引態様 | 仲介 | 小学校学区 | 九段小学校 |
| 周辺情報 | ■まいばすけっと九段南3丁目店(スーパー)まで約2分 ■セブンイレブン九段南大妻通り店(コンビニ)まで約1分 ■オギムラ薬局(ドラッグストア)まで約2分 |
||
| 現況 | 空室 | 入居/引渡時期 | 即時 |
| 更新日 | 2025年11月25日 | ||
| 頭金 |
|
|---|---|
| 金利 |
|
| 返済年数 | 年 |
※建物周辺情報はGoogleMapを使用しており、実際とは若干異なる場合がございます。
掲載情報について

室内写真 物件画像1