三井不動産株式会社旧分譲!東・北向き角部屋、16階部分につき眺望・通風良好!
【特徴・設備】
■2駅4路線利用可能
■JR川崎駅からペデストリアンデッキ直結
■JR各線「川崎」駅より徒歩5分
■京急本線「京急川崎」駅より徒歩10分
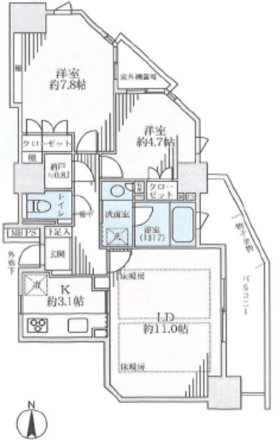
■65㎡のゆとりある2LDK住戸
■足元からお部屋を暖める床暖房(LD部分)設置
■不在時に荷物を受け取れる便利な宅配ロッカー設置
【リフォーム内容】※令和7年1月28日完了
□システムキッチン交換
□ユニットバス交換
□洗面化粧台交換
□洗浄便座付トイレ交換
□全室壁・天井クロス貼替え
□クッションフロア張替え
□全室照明付き
□エアコン3台設置
□ハウスクリーニングなど
