18階部分、東向き住戸!フルリノベーション物件!
【特徴・設備】
■ペット飼育可
■全室窓あり
■家具の配置がしやすい間取り
■カウンターキッチン
■3口ガスコンロ
■収納豊富
■独立洗面台
■室内洗濯置き場あり
【フルリノベーション内容】※令和7年8月完了
□システムキッチン
□トイレ
□洗面化粧台
□ユニットバス
□建具
□クッションフロア
□クロス全室
□床材
□ハウスクリーニング 等
| 価格 | ***万円 |
毎月の返済額 (目安) |
|
|---|---|---|---|
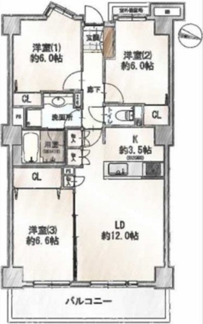
| 築年月 | 2001年2月 | 間取り | 3LDK |
| 専有面積 | 75.26m2 | 所在階 | 18階 |
| 方角 | 東 | ||
| 所在地 | 神奈川県川崎市幸区戸手4丁目9-3 | ||
| 交通 | 京急本線「京急川崎駅」徒歩12分 JR京浜東北線「川崎駅」徒歩13分 |
||
【特徴・設備】
■ペット飼育可
■全室窓あり
■家具の配置がしやすい間取り
■カウンターキッチン
■3口ガスコンロ
■収納豊富
■独立洗面台
■室内洗濯置き場あり
【フルリノベーション内容】※令和7年8月完了
□システムキッチン
□トイレ
□洗面化粧台
□ユニットバス
□建具
□クッションフロア
□クロス全室
□床材
□ハウスクリーニング 等

| 物件名 | グラン・エステ川崎ツインタワー弐番館 | ||
|---|---|---|---|
| 所在地 | 神奈川県川崎市幸区戸手4丁目9-3 | ||
| 交通 |
京急本線「京急川崎駅」徒歩12分 JR京浜東北線「川崎駅」徒歩13分 JR東海道本線(東京~熱海)「川崎駅」徒歩13分 |
||
| 問合せ番号 | 13554-1804 | ||
| 物件特徴 | タワーマンション、大規模マンション | ||
| 物件条件 | ペット可 | ||
| 価格 | ***万円 | 管理費 | ***円/月 |
| 修繕積立金 | ***円/月 | その他費用 | *** |
| 間取り | 3LDK | 方角 | 東 |
| 専有面積 | 75.26m2 | バルコニー面積 | 9.72m2 |
| 建物構造 | RC | 築年月 | 2001年2月 |
| 総戸数 | 268戸 | 総階数 | 地上21階 地下2階 |
| 駐車場 | 月額18,000円~35,000円 | バイク置き場 | 月額2,000円 |
| 駐輪場 | 年額2,400円 | 土地権利 | 所有権 |
| 用途地域 | 準住居地域 | 管理形態 | 日勤管理 |
| 管理会社 | ㈱長谷工コミュニティ | 分譲会社 | ニューシティコーポレーション 他 |
| 施工会社 | 鴻池組 | 設計会社 | - |
| 取引態様 | 仲介 | 小学校学区 | - |
| 周辺情報 | ■スーパー三和川崎遠藤店 徒歩2分 約110m ■そうてつローゼン河原町店 徒歩8分 約600m ■セブンイレブン川崎戸手町店 徒歩5分 約350m ■川崎河原町郵便局 徒歩9分 約650m ■黒瀬クリニック 徒歩10分 約750m ■戸手多摩川公園 徒歩2分 約140m ■幸町小学校 徒歩5分 約350m ■御幸中学校 徒歩9分 約650m |
||
| 現況 | 成約済 | 入居/引渡時期 | *** |
| 更新日 | 2026年1月15日 | ||
※建物周辺情報はGoogleMapを使用しており、実際とは若干異なる場合がございます。
掲載情報について

外観 物件画像1