グランイーグルウイング川崎 11階 成約済みの部屋 13738-11F

  • 総合トップ
  • 中古マンション
  • 一戸建て・土地
  • 投資・収益物件
  • 売りたい[売却査定]
  • 貸したい[賃料査定]

グランイーグルウイング川崎 成約済み物件 (13738-11F)

こちらのお部屋は既に成約済みです。

お手数ですが、建物詳細ページより同マンションで売り出し中の別のお部屋をご覧いただくか、
物件検索より最新の物件をお探しください。

価格
***
毎月の返済額
(目安)
loansimulationIcon
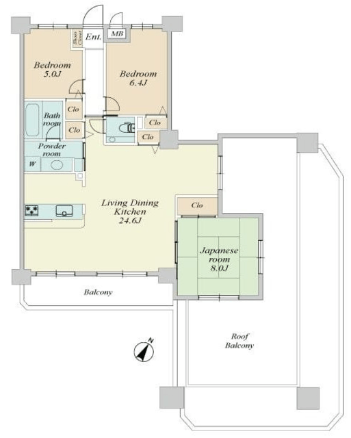
築年月 1999年5月 間取り 3LDK
専有面積 91.12m2 所在階 11階
方角 南東
所在地 神奈川県川崎市川崎区本町2-2-5
交通 京急本線「京急川崎駅」徒歩7分
JR京浜東北線「川崎駅」徒歩10分

免震構造・東南向きルーフバルコニー・駐車場トランクルーム無料・ペット飼育可

【特徴・設備】
■2023年水回りリフォーム済
■東南向き30㎡超のルーフバルコニー
■三方角部屋
■24.6畳の大型LDK
■各居室に収納付き、共用スペースにも収納有り
■リビングが見渡せるカウンターキッチン
■駐車場、トランクルーム、ルーフバルコニー使用料無料
■ペット飼育可(細則有)

2冠達成 恵比寿不動産は物件数No.1 中古マンション数No.1

物件概要

物件名 グランイーグルウイング川崎
所在地
交通
問合せ番号 13738-11F
物件特徴 大規模マンション
物件条件 ペット可
価格 *** 管理費 ***円/月
修繕積立金 ***円/月 その他費用 ***
間取り 3LDK 方角 南東
専有面積 91.12m2 バルコニー面積 9.93m2
建物構造 RC 築年月 1999年5月
総戸数 168戸 総階数 地上15階 
駐車場 有 無料 バイク置き場 -
駐輪場 - 土地権利 所有権
用途地域 商業地域  管理形態 日勤管理
管理会社 リアークスファインド 分譲会社 グランイーグル
施工会社 森本組/佐藤工業株式会社 設計会社 -
取引態様 仲介 小学校学区 -
周辺情報 ■まいばすけっと 川崎本町2丁目店(スーパー)まで約2分
■ローソンストア100 LS川崎本町二丁目店(コンビニ)まで約2分
■アオイ薬局(ドラッグストア)まで約2分
現況 成約済 入居/引渡時期 ***
更新日 2025年5月29日

備考

ルーフバルコニー33.36㎡

部屋設備

  • バス・トイレ別
  • 独立洗面台
  • 追い焚き
  • 温水洗浄便座
  • 浴室乾燥機
  • システムキッチン
  • カウンターキッチン
  • ガスコンロ
  • エアコン
  • フローリング
  • ルーフバルコニー
  • 角部屋
  • 南向き

建物設備

  • エレベーター
  • オートロック
  • 宅配ボックス
  • TVドアホン
  • トランクルーム
  • 駐車場
  • 24時間ゴミ出し可
  • 防犯カメラ
  • BS
  • CS
  • インターネット
  • バリアフリー
  • ペット可

周辺地図

※建物周辺情報はGoogleMapを使用しており、実際とは若干異なる場合がございます。

掲載情報について

  • ※本掲載情報と現況に差異がある場合、現況を優先いたします。
  • ※掲載物件は売却済あるいは売出中止となる場合もあります。
  • ※掲載写真やパース(絵)、または間取図に描かれている家具や車などは、価格に含まれておりません。また、過去に撮影したものをそのまま利用している場合があり、名称・外観・背景等、実際のものとは異なる場合がございます。予めご了承ください。
  • ※仲介物件には所定の仲介手数料(消費税等相当額を含みます)が必要です。
2冠達成 恵比寿不動産は物件数No.1 中古マンション数No.1

部屋一覧

売出し待ちお知らせ希望 未公開情報の確認 お問い合わせ
所在階 間取り 専有面積 価格 お気に入り お問い合わせ 詳細
3F
リノベ
4LDK
82.09m2 7,790
お問い合わせ
詳細を見る

最近見た物件

ライオンズマンション両国リバーサイドおすすめ画像

ライオンズマンション両国リバーサイド 8階

***

  • 東京都墨田区千歳1-1-9
  • JR中央・総武線「両国駅」徒歩10分
    都営新宿線「森下駅」徒歩8分
  • 3LDK  67.82m2
ヴィークハウス広尾おすすめ画像

ヴィークハウス広尾 1階

***

  • 東京都渋谷区広尾2-15-5
  • 東京メトロ日比谷線「広尾駅」徒歩8分
    JR山手線「恵比寿駅」徒歩13分
  • 1LDK  92.89m2
画像準備中

秀和月島レジデンス 4階

***

  • 東京都中央区月島4-13-3
  • 都営大江戸線「月島駅」徒歩3分
    都営大江戸線「勝どき駅」徒歩5分
  • 2LDK  50.00m2
藤和シティホームズ蔵前駅前おすすめ画像

藤和シティホームズ蔵前駅前 7階

***

  • 東京都台東区蔵前3-13-11
  • 都営大江戸線「蔵前駅」徒歩2分
    都営浅草線「蔵前駅」徒歩2分
  • 1LDK  36.82m2
大森第2スカイハイツおすすめ画像

大森第2スカイハイツ 1階

***

  • 東京都大田区大森西1-10-15
  • 京急本線「平和島駅」徒歩14分
    JR京浜東北線「大森駅」徒歩15分
  • 3LDK  59.05m2
サンフル碑文谷さくら通りNORTH SIDEおすすめ画像

サンフル碑文谷さくら通りNORTH SIDE 1階

***

  • 東京都目黒区碑文谷4-6-9
  • 東急東横線「都立大学駅」徒歩12分
    東急東横線「学芸大学駅」徒歩15分
  • 1SLDK  55.63m2