南・北・東の3方角住戸&広々とした3LDK!新規内装リノベーション済!
【特徴・設備】
■2路線3駅利用可能な好立地
■新耐震基準マンション
■エレベーター、オートロック、宅配BOX完備
■犬・猫の飼育も可能(細則有)
■管理人日勤勤務(月曜日の7-12時、火・水・金・土曜日8~12時勤務)
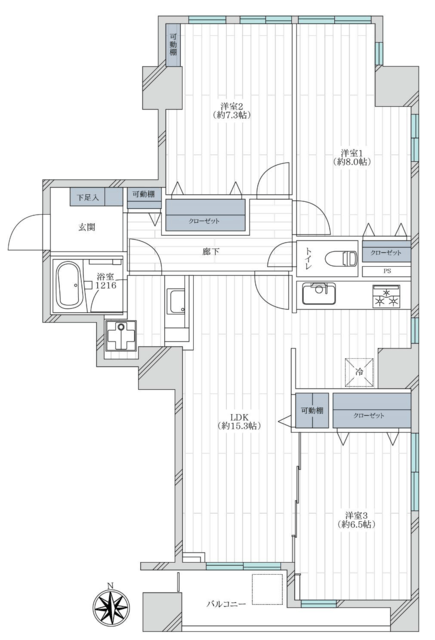
■南・北・東の3方角住戸のため通風良好
■南向き3階部分のため陽当り良好
■玄関を広く設計&玄関収納へフットライト設置により広々とした明るい玄関
■独立タイプの大型キッチン&食洗機付き
■収納力抜群のキャビネット付き洗面化粧台
■全居室6帖以上の広々とした空間
【リノベーション内容】※2025年2月28日完了
□玄関収納、人感センサー、フットライト
□LIXILユニットバス 1216サイズ 暖房換気乾燥機、追炊機能付き
□Panasonic洗面化粧台W1200、キャビネットW300、三面鏡
□洗濯用防水パン、洗濯水栓、可動棚
□LIXILシャワートイレ一体型、吊戸棚、アクセサリー交換
□クリナップ システムキッチン、(I型W2550サイズ)、食洗機付、浄水器一体型水栓
□天井クロス張替、照明器具
□床フロアタイル(玄関・洗面室・トイレ)
□床フローリング(廊下・LDK・洋室)
□給水管・給湯管室内新規
□建具交換、分電盤交換、給湯器交換、
□網戸張替
□スイッチ、□コンセント
□ハウスクリーニング他
