リノベーション済/A棟7階につき、中学校の校庭が望め、眺望・風通し良好
【特徴・設備】
■駅まで平坦『溝の口駅』16分、『武蔵溝ノ口駅』15分、KSPバス停まで徒歩2分
■溝の口駅⇔KSPシャトルバスあり
■ペット飼育可(使用細則あり)
■敷地内には、桜の咲く遊具付きの広場がございます
■保育施設、小・中学校、公園も揃っており、治安が良く、閑静で落ち着いた住環境が整っております
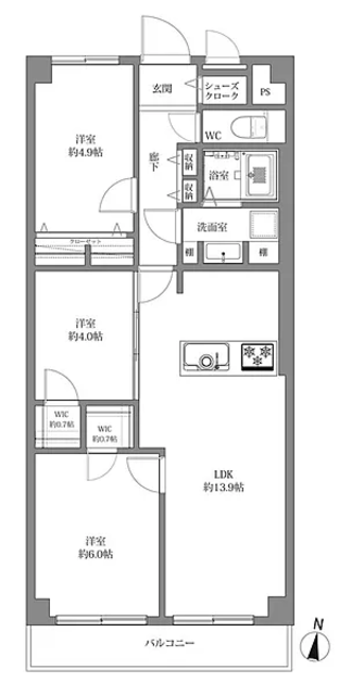
■家事動線を工夫して、生活のしやすいお部屋にリノベーションしました
■家事の時短や節水に役立つ食洗機付き
■浴室乾燥機付きなので雨の日でも楽々お洗濯
■修繕積立金総額は5億円以上、管理状態良好
【リノベーション内容】
□システムキッチン交換(浄水機能付)
□ユニットバス交換(浴室暖房換気乾燥機)
□洗面化粧台交換(システム収納付)
□トイレ交換(温水洗浄便座付)
□全壁および全天井クロス貼替
□全スイッチコンセントパネル交換
□フローリング張替・フロアタイル張替
□全建具交換
□給湯器交換
□洗濯防水パン交換・洗濯水栓交換
□シューズボックス交換
□全サッシ調整
□網戸張替
□全照明器具交換(LED)
□レースカーテン新規設置
□クリーニングetc
