ミオカステーロ練馬 1階 成約済みの部屋 14036-104

  • 総合トップ
  • 中古マンション
  • 一戸建て・土地
  • 投資・収益物件
  • 売りたい[売却査定]
  • 貸したい[賃料査定]

ミオカステーロ練馬 成約済み物件 (14036-104)

こちらのお部屋は既に成約済みです。

お手数ですが、建物詳細ページより同マンションで売り出し中の別のお部屋をご覧いただくか、
物件検索より最新の物件をお探しください。

価格
***
毎月の返済額
(目安)
loansimulationIcon
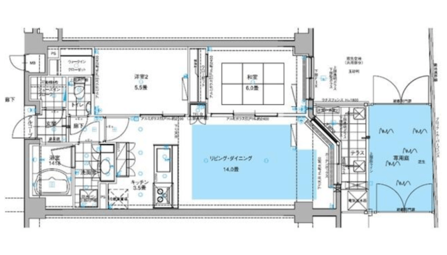
築年月 2007年2月 間取り 2LDK+WIC+SIC
専有面積 64.96m2 所在階 1階
方角 -
所在地 東京都練馬区豊玉中4-1-16
交通 西武池袋線「練馬駅」徒歩10分
都営大江戸線「練馬駅」徒歩10分

1階部分・専用庭付き住戸/練馬駅徒歩10分・2路線利用可

【特徴・設備】
■オール電化
■人気の対面キッチン、IHクッキングヒーター
■ウォークインクローゼット・シューズインクローク
■ガーデニングに最適な専用庭・専用テラスつき
■1階部分につき階下へ気兼ねなく暮らせます
■不在時に便利な宅配ボックス

2冠達成 恵比寿不動産は物件数No.1 中古マンション数No.1

物件概要

物件名 ミオカステーロ練馬
所在地
交通
問合せ番号 14036-104
物件特徴 -
物件条件 -
価格 *** 管理費 ***円/月
修繕積立金 ***円/月 その他費用 ***
間取り 2LDK 方角 -
専有面積 64.96m2 バルコニー面積 -
建物構造 RC 築年月 2007年2月
総戸数 24戸 総階数 地上4階 
駐車場 有 月額20,000円 バイク置き場 -
駐輪場 有 月額300円 土地権利 所有権
用途地域 第一種低層住居専用地域 管理形態 日勤管理
管理会社 株式会社エム・シー・サービス 分譲会社 山田建設株式会社
施工会社 山田建設株式会社 設計会社 -
取引態様 仲介 小学校学区 -
周辺情報 ■オオゼキ 練馬店(スーパー)まで約4分
■ファミリーマート 豊玉北六丁目店(コンビニ)まで約2分
■エース薬局 豊玉店(ドラッグストア)まで約2分
現況 成約済 入居/引渡時期 ***
更新日 2025年6月24日

備考

部屋設備

  • バス・トイレ別
  • 独立洗面台
  • システムキッチン
  • カウンターキッチン
  • IHクッキングヒーター
  • エアコン
  • シューズインクローゼット
  • ウォークインクローゼット
  • 専用庭

建物設備

  • エレベーター
  • オートロック
  • 宅配ボックス
  • TVドアホン
  • 駐車場
  • 駐輪場
  • オール電化
  • 防犯カメラ
  • CATV
  • インターネット
  • 閑静な住宅街

周辺地図

※建物周辺情報はGoogleMapを使用しており、実際とは若干異なる場合がございます。

掲載情報について

  • ※本掲載情報と現況に差異がある場合、現況を優先いたします。
  • ※掲載物件は売却済あるいは売出中止となる場合もあります。
  • ※掲載写真やパース(絵)、または間取図に描かれている家具や車などは、価格に含まれておりません。また、過去に撮影したものをそのまま利用している場合があり、名称・外観・背景等、実際のものとは異なる場合がございます。予めご了承ください。
  • ※仲介物件には所定の仲介手数料(消費税等相当額を含みます)が必要です。
2冠達成 恵比寿不動産は物件数No.1 中古マンション数No.1

部屋一覧

売出し待ちお知らせ希望 未公開情報の確認 お問い合わせ
所在階 間取り 専有面積 価格 お気に入り お問い合わせ 詳細

最近見た物件

グランドメゾン白金の杜ザ・タワーおすすめ画像

グランドメゾン白金の杜ザ・タワー 22階

***

  • 東京都港区白金6丁目16-25
  • 東京メトロ日比谷線「広尾駅」徒歩12分
    東京メトロ南北線「白金台駅」徒歩13分
  • 2SLDK  68.25m2
パークタワー品川ベイワードおすすめ画像

パークタワー品川ベイワード 32階

***

  • 東京都港区港南3-5-10
  • JR山手線「品川駅」徒歩14分
    JR京浜東北線「品川駅」徒歩14分
  • 3LDK  85.76m2
大森駅前住宅おすすめ画像

大森駅前住宅 12階

***

  • 東京都品川区南大井6-18-1
  • JR京浜東北線「大森駅」徒歩2分
    京急本線「大森海岸駅」徒歩9分
  • 2LDK  55.31m2
グランドメゾン白金の杜ザ・タワーおすすめ画像

グランドメゾン白金の杜ザ・タワー 20階

***

  • 東京都港区白金6丁目16-25
  • 東京メトロ日比谷線「広尾駅」徒歩12分
    東京メトロ南北線「白金台駅」徒歩13分
  • 2SLDK  69.12m2
中目黒ガーデンおすすめ画像

中目黒ガーデン 4階

***

  • 東京都目黒区中目黒4-7-3
  • 東急東横線「中目黒駅」徒歩10分
    東京メトロ日比谷線「中目黒駅」徒歩10分
  • 1LDK  42.36m2
サンウッド赤坂フラッツおすすめ画像

サンウッド赤坂フラッツ 8階

***

  • 東京都港区赤坂9-1-27
  • 東京メトロ千代田線「赤坂駅」徒歩6分
    東京メトロ千代田線「乃木坂駅」徒歩6分
  • 1DK  35.94m2