19階最上階角部屋、日照・眺望良好!駐車場空有(1住戸1台40,000円)!
【特徴・設備】
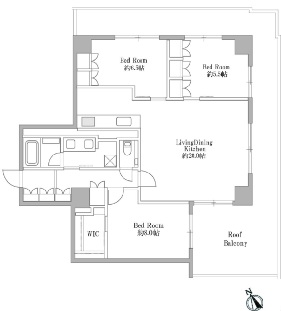
■94.55㎡・3LDKファミリータイプ
■ルーフバルコニー付
■リビングダイニングに床暖房設置
■各居室に収納があり8帖の洋室にはWIC
■広々とした約20帖のLDK
■2ボウルの洗面台
【リフォーム内容】※令和7年5月完了
□キッチン交換(食洗機付)
□ユニットバス交換(追炊き付)
□洗面台交換(ツインボウル)
□シャワートイレ交換
□大理石タイル・フロ一リング貼替
□クロス貼替
□建具・収納交換
□給湯器交換・床暖房新設
