最上階9階部分/新規リフォーム済物件/ペット飼育可
【特徴・設備】
■総武線始発、中央線快速「三鷹」駅徒歩5分!
■中央通り商店街」の一本入った生活施設豊富な立地!
■ホテルライクな内廊下設計
■リフォーム済みのきれいなお部屋
■ペット飼育可(細則有)
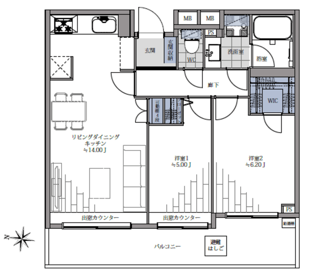
■ウォークインクローゼットなど収納充実
■家事には嬉しい食洗機、浄水器、浴室乾燥機が完備されています
■エレベーター・オートロック・宅配ボックス
■長期修繕計画有
■住宅ローン減税対象物件
【リフォーム内容】※2025年5月9日完成済み
□フローリング新規貼替
□ユニットバス新規交換
□洗面化粧台新規交換
□トイレ新規交換
□システムキッチン新規交換
□壁・天井クロス新規交換
□建具・玄関収納新規交換
□給湯器新規交換
□洗濯水栓・防水パン新規交換
