1階部分、南向き住戸!専用庭付!
【特徴・設備】
■ペット飼育可
■全室窓あり
■家具の配置がしやすい間取り
■システムキッチン
■3口ガスコンロ
■収納豊富
■独立洗面台
■室内洗濯置き場あり
■アフターサービス保証付
| 価格 | 1億3,500万円 |
毎月の返済額 (目安) |
|
|---|---|---|---|
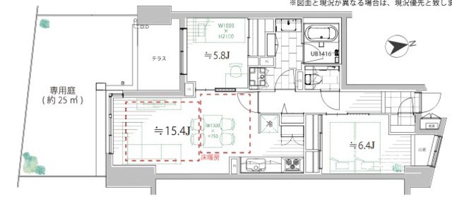
| 築年月 | 2002年12月 | 間取り | 2LDK |
| 専有面積 | 65.93m2 | 所在階 | 1階 |
| 方角 | 南 | ||
| 所在地 | 東京都新宿区南榎町5-1 | ||
| 交通 | 東京メトロ東西線「神楽坂駅」徒歩8分 都営大江戸線「牛込柳町駅」徒歩8分 |
||
【特徴・設備】
■ペット飼育可
■全室窓あり
■家具の配置がしやすい間取り
■システムキッチン
■3口ガスコンロ
■収納豊富
■独立洗面台
■室内洗濯置き場あり
■アフターサービス保証付

| 物件名 | 神楽坂パークハウス | ||
|---|---|---|---|
| 所在地 | 東京都新宿区南榎町5-1 | ||
| 交通 |
東京メトロ東西線「神楽坂駅」徒歩8分 都営大江戸線「牛込柳町駅」徒歩8分 |
||
| 問合せ番号 | 14176-107 | ||
| 物件特徴 | - | ||
| 物件条件 | ペット可 | ||
| 価格 | 1億3,500万円 | 管理費 | 21,000円/月 |
| 修繕積立金 | 26,380円/月 | その他費用 | - |
| 間取り | 2LDK | 方角 | 南 |
| 専有面積 | 65.93m2 | バルコニー面積 | - |
| 建物構造 | RC | 築年月 | 2002年12月 |
| 総戸数 | 38戸 | 総階数 | 地上5階 |
| 駐車場 | 月額30,000円~36,000円 | バイク置き場 | 月額1,500円 |
| 駐輪場 | 月額300円~500円 | 土地権利 | 所有権 |
| 用途地域 | 第一種中高層住居専用地域 | 管理形態 | 日勤管理 |
| 管理会社 | 中央日土地レジデンシャルサービス | 分譲会社 | 三菱地所、神戸製鋼所不動産カンパニー |
| 施工会社 | 大豊建設 | 設計会社 | - |
| 取引態様 | 仲介 | 小学校学区 | 市谷小学校 |
| 周辺情報 | ■業務スーパー新宿榎店(スーパー)まで約2分 ■ファミリーマート新宿弁天町店(コンビニ)まで約3分 ■アイン薬局弁天町店(ドラッグストア)まで約2分 |
||
| 現況 | 空室 | 入居/引渡時期 | 即時 |
| 更新日 | 2026年4月10日 | ||
| 頭金 |
|
|---|---|
| 金利 |
|
| 返済年数 | 年 |
※建物周辺情報はGoogleMapを使用しており、実際とは若干異なる場合がございます。
掲載情報について

外観 物件画像1