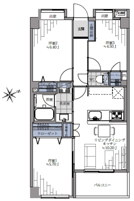
3階部分・東向き!60.88㎡・3LDKファミリータイプ!新規リフォーム済!
【特徴・設備】
■JR中央線特快停車駅「三鷹」徒歩4分
■自然と都会を兼ね備える武蔵野市中町アドレス
■商業施設充実の三鷹駅が生活圏内
■住宅ローン控除利用可
■各居室にクローゼット
■リビングが見渡せるカウンターキッチン
■浴室乾燥機付きなので雨の日でも楽々お洗濯
■リフォーム済みのきれいなお部屋
【リフォーム内容】※2025年4月30日完成済
□フローリング新規貼替
□ユニットバス新規交換
□洗面化粧台新規交換
□トイレ新規交換
□システムキッチン新規交換
□壁・天井クロス新規交換
□建具・玄関収納新規交換
□給湯器新規交換
□洗濯水栓・防水パン新規交換
