メイゾン上北沢 3階 成約済みの部屋 14333-307

  • 総合トップ
  • 中古マンション
  • 一戸建て・土地
  • 投資・収益物件
  • 売りたい[売却査定]
  • 貸したい[賃料査定]

メイゾン上北沢 成約済み物件 (14333-307)

こちらのお部屋は既に成約済みです。

お手数ですが、建物詳細ページより同マンションで売り出し中の別のお部屋をご覧いただくか、
物件検索より最新の物件をお探しください。

価格
***
毎月の返済額
(目安)
loansimulationIcon
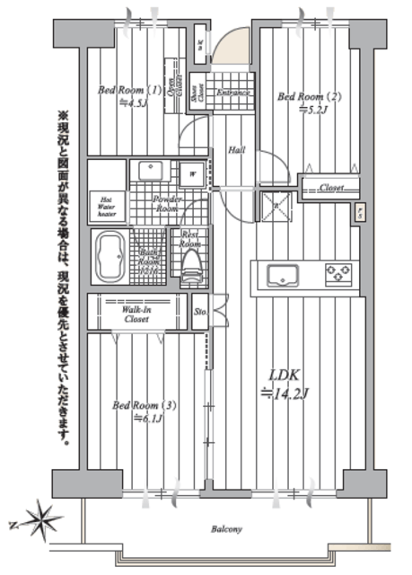
築年月 1981年2月 間取り 3LDK+WIC
専有面積 64.47m2 所在階 3階
方角 西
所在地 東京都世田谷区上北沢5-12-2
交通 京王線「八幡山駅」徒歩5分
京王線「上北沢駅」徒歩10分

京王線「八幡山」駅徒歩5分!ペット飼育可(細則有)!

【特徴・設備】
■3階部分・西向き住戸
■ファミリーに最適な3LDKタイプ
■ウォークインクローゼット
■洋室3の引戸を開ければ、LDと一体的にも利用可能
■リビングが見渡せるカウンターキッチン
■アフターサービス保証付き

【リフォーム内容】※2025年5月中旬終了
□給水管(MBより)、給湯・追焚管(給湯器より)、排水管(専有部分内飛び込みより)新規配管
□ユニットバス(サイズ1216、浴室換気乾燥機、追焚付)
□システムキッチン(W2250、浄水器内蔵シャワー水栓、食洗機)
□洗面化粧台
□トイレ
□建具・下足入
□電気温水器、分電盤
□全室クロス、フローリング、フロアスタイル
□ハウスクリーニングなど

2冠達成 恵比寿不動産は物件数No.1 中古マンション数No.1

物件概要

物件名 メイゾン上北沢
所在地
交通
問合せ番号 14333-307
物件特徴 -
物件条件 ペット可
価格 *** 管理費 ***円/月
修繕積立金 ***円/月 その他費用 ***
間取り 3LDK 方角 西
専有面積 64.47m2 バルコニー面積 8.03m2
建物構造 RC 築年月 1981年2月
総戸数 33戸 総階数 地上6階 
駐車場 あり バイク置き場 -
駐輪場 - 土地権利 所有権
用途地域 第一種中高層住居専用地域、近隣商業地域 管理形態 巡回管理
管理会社 ㈱東急コミュニティー 分譲会社 東芝住宅産業
施工会社 フジタ工業 設計会社 -
取引態様 仲介 小学校学区 上北沢小学校
周辺情報 ■オオゼキ八幡山店(スーパー)まで約2分
■セブンイレブン上北沢5丁目店(コンビニ)まで約1分
■千利薬局上北沢店(ドラッグストア)まで約1分
現況 成約済 入居/引渡時期 ***
更新日 2025年8月25日

備考

部屋設備

  • バス・トイレ別
  • 独立洗面台
  • 追い焚き
  • 温水洗浄便座
  • 浴室乾燥機
  • システムキッチン
  • カウンターキッチン
  • 食器洗浄機
  • 浄水器
  • ガスコンロ
  • ウォークインクローゼット
  • フローリング
  • リノベーション

建物設備

  • エレベーター
  • オートロック
  • 宅配ボックス
  • トランクルーム
  • ペット可
  • フラット35

周辺地図

※建物周辺情報はGoogleMapを使用しており、実際とは若干異なる場合がございます。

掲載情報について

  • ※本掲載情報と現況に差異がある場合、現況を優先いたします。
  • ※掲載物件は売却済あるいは売出中止となる場合もあります。
  • ※掲載写真やパース(絵)、または間取図に描かれている家具や車などは、価格に含まれておりません。また、過去に撮影したものをそのまま利用している場合があり、名称・外観・背景等、実際のものとは異なる場合がございます。予めご了承ください。
  • ※仲介物件には所定の仲介手数料(消費税等相当額を含みます)が必要です。
2冠達成 恵比寿不動産は物件数No.1 中古マンション数No.1

部屋一覧

売出し待ちお知らせ希望 未公開情報の確認 お問い合わせ
所在階 間取り 専有面積 価格 お気に入り お問い合わせ 詳細

最近見た物件

パロス新富町おすすめ画像

パロス新富町 2階

9,580

  • 東京都中央区新富1-10-2
  • 東京メトロ有楽町線「新富町駅」徒歩4分
    東京メトロ日比谷線「八丁堀駅」徒歩5分
  • 2LDK  61.29m2
パルテールアージュおすすめ画像

パルテールアージュ 8階

***

  • 東京都渋谷区初台2-31-5
  • 京王新線「初台駅」徒歩5分
    小田急線「参宮橋駅」徒歩8分
  • 2LDK  67.28m2
Wコンフォートタワーズイーストおすすめ画像

Wコンフォートタワーズイースト 44階

13,480

  • 東京都江東区東雲1-9-32
  • 東京メトロ有楽町線「辰巳駅」徒歩6分
    りんかい線「東雲駅」徒歩8分
  • 3LDK  89.04m2
成城学園サマリヤマンションおすすめ画像

成城学園サマリヤマンション 1階

***

  • 東京都世田谷区成城1-9-2
  • 小田急線「成城学園前駅」徒歩12分
  • 2LDK  69.36m2
井の頭第2パークサイドマンションおすすめ画像

井の頭第2パークサイドマンション 11階

***

  • 東京都武蔵野市御殿山1丁目4-14
  • JR中央・総武線「吉祥寺駅」徒歩7分
    京王井の頭線「吉祥寺駅」徒歩7分
  • 2LDK  83.73m2
画像準備中

大森海岸パークハウス 4階

***

  • 東京都大田区大森本町1-8-12
  • 京急本線「大森海岸駅」徒歩7分
    京急本線「平和島駅」徒歩9分
  • 3LDK  71.92m2