室内リノベーション実施、ルーフバルコニー付き!リビング天井高約2700mm!
【特徴・設備】
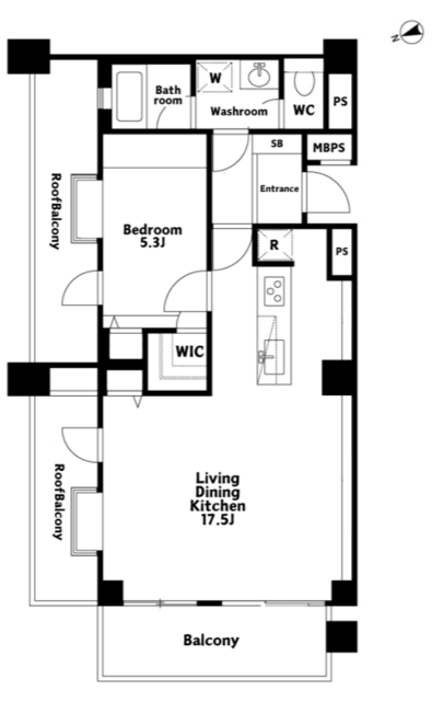
■4階建て3階部分の角住戸。抜け感のあるルーフバルコニーが特徴です。
■オールステンレス製キッチン。
■1996年1月完成物件
■ペット飼育可(細則あり)。
■JR四ツ谷駅前には商業施設アトレ四谷、コモレ四谷があり、買い物に便利
■ウォークインクローゼットあり
■リビングにいるご家族とおしゃべりしながら家事ができる人気のオープンキッチン
【リノベーション内容】※2025年5月完了
□キッチン新規交換
□トイレ新規交換
□洗面台新規交換
□ユニットバス新規交換
□防水パン新規交換
□クロス新品交換
□飾り棚・カップボード造作
□フローリング新規交換
□照明新規増設
