京浜東北線「桜⽊町駅」から徒歩3分!北東向きのお部屋です!
【特徴・設備】
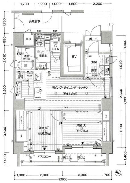
■北東向き・2面採光・角部屋
■外観タイル張り
■常時ゴミ出し可能
■浴室暖房、浴室乾燥機
■各居室にクローゼット
■各居室6帖以上
■リビングダイニングに床暖房設置
■キッチン・浴室に窓あり
■プライバシー性の高い専用ポーチ付き
■安心のオートロック・モニタ付インターホン・ディンプルキー・防犯カメラ
■不在時に便利な宅配BOX
| 価格 | 7,500万円 |
毎月の返済額 (目安) |
|
|---|---|---|---|
| 築年月 | 2013年2月 | 間取り | 2LDK |
| 専有面積 | 64.64m2 | 所在階 | 3階 |
| 方角 | 北東 | ||
| 所在地 | 神奈川県横浜市中区花咲町2-66-3 | ||
| 交通 | JR京浜東北線「桜木町駅」徒歩3分 京急本線「日ノ出町駅」徒歩9分 |
||
【特徴・設備】
■北東向き・2面採光・角部屋
■外観タイル張り
■常時ゴミ出し可能
■浴室暖房、浴室乾燥機
■各居室にクローゼット
■各居室6帖以上
■リビングダイニングに床暖房設置
■キッチン・浴室に窓あり
■プライバシー性の高い専用ポーチ付き
■安心のオートロック・モニタ付インターホン・ディンプルキー・防犯カメラ
■不在時に便利な宅配BOX

| 物件名 | アール・ケープラザ横濱6 | ||
|---|---|---|---|
| 所在地 | 神奈川県横浜市中区花咲町2-66-3 | ||
| 交通 |
JR京浜東北線「桜木町駅」徒歩3分 京急本線「日ノ出町駅」徒歩9分 |
||
| 問合せ番号 | 14709-3F | ||
| 物件特徴 | - | ||
| 物件条件 | ペット可 | ||
| 価格 | 7,500万円 | 管理費 | 13,970円/月 |
| 修繕積立金 | 9,180円/月 | その他費用 | 町会費:300円/月 |
| 間取り | 2LDK | 方角 | 北東 |
| 専有面積 | 64.64m2 | バルコニー面積 | 8.01m2 |
| 建物構造 | RC | 築年月 | 2013年2月 |
| 総戸数 | 28戸 | 総階数 | 地上10階 |
| 駐車場 | 有 | バイク置き場 | - |
| 駐輪場 | - | 土地権利 | 所有権 |
| 用途地域 | 商業地域 | 管理形態 | 日勤管理 |
| 管理会社 | ケイアール株式会社 | 分譲会社 | - |
| 施工会社 | 南海⾠村建設株式会社 | 設計会社 | - |
| 取引態様 | 仲介 | 小学校学区 | - |
| 周辺情報 | ■北野エース CIAL 桜木町店(スーパー)まで徒歩 2分 ■成城石井 シァル桜木町アネックス店(スーパー)まで徒歩 2分 ■セブンイレブン 横浜桜木町駅前店(コンビニ)まで徒歩 1分 ■クリエイトSD 桜木町ぴおシティ店(ドラッグストア)まで徒歩 1分 |
||
| 現況 | 空室 | 入居/引渡時期 | 相談 |
| 更新日 | 2025年11月17日 | ||
| 頭金 |
|
|---|---|
| 金利 |
|
| 返済年数 | 年 |
※建物周辺情報はGoogleMapを使用しており、実際とは若干異なる場合がございます。
掲載情報について

外観 物件画像1