長原台アーバンハイム 3階

  • 総合トップ
  • 中古マンション
  • 一戸建て・土地
  • 投資・収益物件
  • 売りたい[売却査定]
  • 貸したい[賃料査定]

長原台アーバンハイム 3階

価格
4,580
毎月の返済額
(目安)
loansimulationIcon
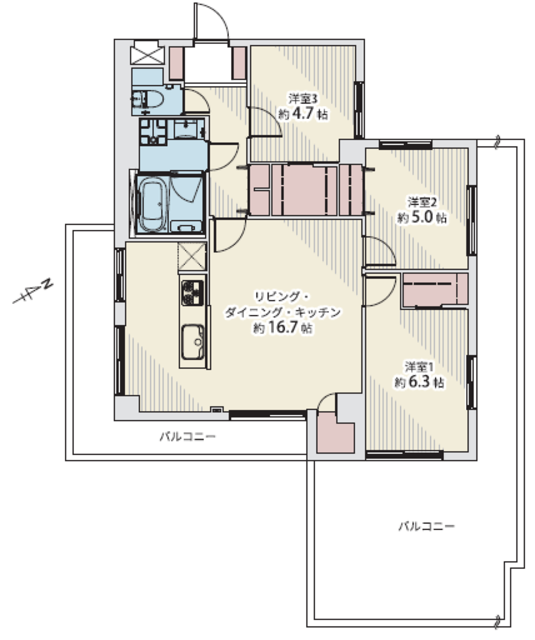
築年月 1979年2月 間取り 3LDK+WIC
専有面積 72.95m2 所在階 3階
方角 南東
所在地 東京都大田区中馬込1-1-17
交通 東急池上線「長原駅」徒歩10分
都営浅草線「馬込駅」徒歩12分

3階部分・南東向き角部屋!広々53.66m2のバルコニー付!

【特徴・設備】
■3路線駅利用可
■長期修繕計画有
■省エネ仕様(保温浴槽・節湯水栓・内窓・LED照明・高性能エアコン)
■各居室に収納があり洋室1にはWIC・共用スペースにも収納あり
■リビングが見渡せる対面式キッチン
■3LDKファミリータイプ
■小学校まで徒歩5分、お子様の通学も安心です
■アフターサービス保証付き

【リノベーション内容】※令和7年10月17日内装終了
□システムキッチン・W2250・食洗機
□ユニツトバス・1416
□シャワー付洗面化粧台・防水パン
□温水洗浄便座付トイ
□エアコン(洋室3)
□給湯器・追焚・切レチリモコン付
□給水、給湯、排水管(専有音紛)
□照明器具、建具
□床:フローリング(LDK、洋室、廊下)
□フロアタイル(玄関、洗面室、トイレ)
□壁天井:クロス貼

2冠達成 恵比寿不動産は物件数No.1 中古マンション数No.1

長原台アーバンハイム 3階の
購入に関するお問い合わせはこちらから

contact us

恵比寿不動産までお気軽にお問い合わせください

お電話でのお問い合わせはこちら:03-6421-0543 10:00 - 19:00 (水曜定休)
恵比寿不動産店舗情報渋谷区東3-25-11 TOKYU REIT恵比寿ビル4階
オフィス内観写真
オフィス外観写真
リフォーム無料お見積りサービス

物件概要

物件名 長原台アーバンハイム
所在地
交通
問合せ番号 14887-305
物件特徴 -
物件条件 -
価格 4,580 管理費 27,083円/月
修繕積立金 2,708円/月 その他費用 借地料:月額12,890円
間取り 3LDK 方角 南東
専有面積 72.95m2 バルコニー面積 53.66m2
建物構造 RC 築年月 1979年2月
総戸数 25戸 総階数 地上5階 
駐車場 バイク置き場 -
駐輪場 - 土地権利 旧法賃借
用途地域 第二種住居地域 管理形態 自主管理
管理会社 - 分譲会社 日本アーバンシステムズ株式会社
施工会社 株式会社熊谷組 設計会社 -
取引態様 仲介 小学校学区 -
周辺情報 ■まいばすけっと 北馬込店(スーパー)まで徒歩 5分
■ライフ上池台店(スーパー)まで徒歩 6分
■ファミリーマート 上池台夫婦坂店(コンビニ)まで徒歩 2分
■ウエルシア大田上池台店(ドラッグストア)まで徒歩 1分
■旗の台病院まで徒歩12分
■馬込第三小学校まで徒歩 5分
■貝塚中学校まで徒歩 9分
現況 空室 入居/引渡時期 即時
更新日 2025年11月11日

備考

部屋設備

  • バス・トイレ別
  • 独立洗面台
  • 追い焚き
  • 温水洗浄便座
  • 浴室乾燥機
  • システムキッチン
  • カウンターキッチン
  • 食器洗浄機
  • 浄水器
  • ガスコンロ
  • エアコン
  • ウォークインクローゼット
  • フローリング
  • 角部屋
  • 南向き
  • リノベーション

建物設備

  • エレベーター
  • 宅配ボックス
  • TVドアホン
  • 駐車場

長原台アーバンハイム 3階のローンシミュレーション

借入金額
4,580
頭金
0万円
毎月の返済額
頭金
  • 支払い額万円※半角数字
金利
  • %※半角数字
返済年数
  • ※元利均等返済方式、最大優遇の場合で計算しています。
  • ※融資には個別審査があり、審査結果により、貸出条件(金利・貸出期間・借入額)が異なる場合がございます。
  • ※不動産のご購入に際しましては物件価格以外にその他諸費用が必要となります。
    諸費用に関する詳細につきましてはお問い合わせ下さいませ。

周辺地図

※建物周辺情報はGoogleMapを使用しており、実際とは若干異なる場合がございます。

掲載情報について

  • ※本掲載情報と現況に差異がある場合、現況を優先いたします。
  • ※掲載物件は売却済あるいは売出中止となる場合もあります。
  • ※掲載写真やパース(絵)、または間取図に描かれている家具や車などは、価格に含まれておりません。また、過去に撮影したものをそのまま利用している場合があり、名称・外観・背景等、実際のものとは異なる場合がございます。予めご了承ください。
  • ※仲介物件には所定の仲介手数料(消費税等相当額を含みます)が必要です。
2冠達成 恵比寿不動産は物件数No.1 中古マンション数No.1

長原台アーバンハイム 3階の
購入に関するお問い合わせはこちらから

contact us

恵比寿不動産までお気軽にお問い合わせください

お電話でのお問い合わせはこちら:03-6421-0543 10:00 - 19:00 (水曜定休)
恵比寿不動産店舗情報渋谷区東3-25-11 TOKYU REIT恵比寿ビル4階
オフィス内観写真
オフィス外観写真

部屋一覧

売出し待ちお知らせ希望 未公開情報の確認 お問い合わせ
所在階 間取り 専有面積 価格 お気に入り お問い合わせ 詳細
3F
リノベ
3LDK
72.95m2 4,580
お問い合わせ
詳細を見る

最近見た物件

AZEST下落合おすすめ画像

AZEST下落合 5階

***

  • 東京都新宿区上落合1-9-10
  • 東京メトロ東西線「落合駅」徒歩7分
    西武新宿線「下落合駅」徒歩8分
  • 1K  26.15m2
両国緑スカイハイツおすすめ画像

両国緑スカイハイツ 6階

***

  • 東京都墨田区緑3-22-1
  • 都営大江戸線「両国駅」徒歩8分
    JR中央・総武線「両国駅」徒歩11分
  • 1LDK  43.20m2
パークタワー西新宿おすすめ画像

パークタワー西新宿 14階

24,800

  • 東京都新宿区西新宿5-6-1
  • 都営大江戸線「西新宿五丁目駅」徒歩6分
    東京メトロ丸ノ内線「西新宿駅」徒歩10分
  • 3LDK  80.70m2
パークホームズ南大塚おすすめ画像

パークホームズ南大塚 10階

13,999

  • 東京都豊島区南大塚2-21-7
  • 東京メトロ丸ノ内線「新大塚駅」徒歩6分
    JR山手線「大塚駅」徒歩7分
  • 2SLDK  68.54m2
ライオンズマンション東陽町第3おすすめ画像

ライオンズマンション東陽町第3 8階

7,899

  • 東京都江東区南砂2-2-11
  • 東京メトロ東西線「東陽町駅」徒歩5分
    東京メトロ東西線「南砂町駅」徒歩9分
  • 3LDK  71.55m2
戸山マンションおすすめ画像

戸山マンション 2階

4,780

  • 東京都新宿区新宿7-17-18
  • 東京メトロ副都心線「東新宿駅」徒歩5分
    都営大江戸線「東新宿駅」徒歩5分
  • 2LDK  59.18m2