ジェイパーク戸越銀座ブランシェール 2階

  • 総合トップ
  • 中古マンション
  • 一戸建て・土地
  • 投資・収益物件
  • 売りたい[売却査定]
  • 貸したい[賃料査定]

ジェイパーク戸越銀座ブランシェール 2階

価格
11,290
毎月の返済額
(目安)
loansimulationIcon
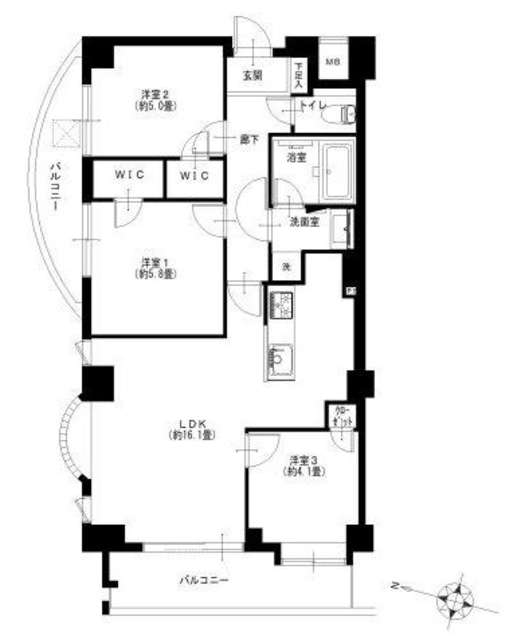
築年月 2001年2月 間取り 3LDK+WIC
専有面積 69.15m2 所在階 2階
方角 南西
所在地 東京都品川区荏原2-2-14
交通 東急池上線「戸越銀座駅」徒歩5分
都営浅草線「戸越駅」徒歩8分

2階部分・南西向き・角部屋!新規リノベーション済!オートロック・宅配ボックス付きマンション!

【特徴・設備】
■犬・猫2匹まで飼育可(細則有)
■南西向き角住戸、2面採光の明るく開放感のあるお部屋♪
■床暖房や食洗機、1418サイズの浴室などワンランク上の充実した設備
■ウォークインクローゼットを2か所新設!整理しやすい室内です
■周辺には、武蔵小山商店街パルムや戸越銀座商店街があり、毎日のお買い物に便利です
■京陽小学校まで徒歩6分、お子様が通いやすい距離♪
■フラット35適合物件
■住宅ローン減税適合物件
■アフターサービス保証付き

【リノベーション内容】※2025年10月完了
□システムキッチン交換
□ユニットバス交換
□洗面台交換
□トイレ交換
□全室クロス張替
□全フローリング張替
□全建具交換
□フロアタイル張替
□下足入れ交換
□洗濯水栓器具交換
□防水パン交換
□スイッチパネル設置
□ダウンライト設置
□照明器具設置
□玄関人感センサー設置

2冠達成 恵比寿不動産は物件数No.1 中古マンション数No.1

ジェイパーク戸越銀座ブランシェール 2階の
購入に関するお問い合わせはこちらから

contact us

恵比寿不動産までお気軽にお問い合わせください

お電話でのお問い合わせはこちら:03-6421-0543 10:00 - 19:00 (水曜定休)
恵比寿不動産店舗情報渋谷区東3-25-11 TOKYU REIT恵比寿ビル4階
オフィス内観写真
オフィス外観写真
リフォーム無料お見積りサービス

物件概要

物件名 ジェイパーク戸越銀座ブランシェール
所在地
交通
問合せ番号 14993-201
物件特徴 -
物件条件 -
価格 11,290 管理費 14,870円/月
修繕積立金 26,550円/月 その他費用 -
間取り 3LDK 方角 南西
専有面積 69.15m2 バルコニー面積 12.75m2
建物構造 RC 築年月 2001年2月
総戸数 42戸 総階数 地上7階 
駐車場 有 月額28,000円~31,000円 バイク置き場
駐輪場 有 月額300円 土地権利 所有権
用途地域 準工業地域 管理形態 日勤管理
管理会社 株式会社大京アステージ 分譲会社 株式会社ジョイント・コーポレーション
施工会社 株式会社松村組 設計会社 有限会社コム・プランテック一級建築士事務所
取引態様 仲介 小学校学区 京陽小学校
周辺情報 ■スーパーオオゼキ戸越銀座店(スーパー)まで徒歩 3分
■まいばすけっと 西五反田6丁目店(スーパー)まで徒歩 5分
■ファミリーマート 品川荏原二丁目店(コンビニ)まで徒歩 1分
■ココカラファイン戸越銀座駅前店(ドラッグストア)まで徒歩 4分
現況 空室 入居/引渡時期 相談
更新日 2025年11月21日

備考

部屋設備

  • バス・トイレ別
  • 独立洗面台
  • 追い焚き
  • 温水洗浄便座
  • 浴室乾燥機
  • システムキッチン
  • 食器洗浄機
  • 浄水器
  • ガスコンロ
  • 床暖房
  • ウォークインクローゼット
  • フローリング
  • 角部屋
  • 南向き
  • リノベーション

建物設備

  • エレベーター
  • オートロック
  • 宅配ボックス
  • TVドアホン
  • 駐車場
  • 駐輪場
  • 防犯カメラ
  • BS
  • CS
  • CATV
  • インターネット
  • フラット35

ジェイパーク戸越銀座ブランシェール 2階のローンシミュレーション

借入金額
11,290
頭金
0万円
毎月の返済額
頭金
  • 支払い額万円※半角数字
金利
  • %※半角数字
返済年数
  • ※元利均等返済方式、最大優遇の場合で計算しています。
  • ※融資には個別審査があり、審査結果により、貸出条件(金利・貸出期間・借入額)が異なる場合がございます。
  • ※不動産のご購入に際しましては物件価格以外にその他諸費用が必要となります。
    諸費用に関する詳細につきましてはお問い合わせ下さいませ。

周辺地図

※建物周辺情報はGoogleMapを使用しており、実際とは若干異なる場合がございます。

掲載情報について

  • ※本掲載情報と現況に差異がある場合、現況を優先いたします。
  • ※掲載物件は売却済あるいは売出中止となる場合もあります。
  • ※掲載写真やパース(絵)、または間取図に描かれている家具や車などは、価格に含まれておりません。また、過去に撮影したものをそのまま利用している場合があり、名称・外観・背景等、実際のものとは異なる場合がございます。予めご了承ください。
  • ※仲介物件には所定の仲介手数料(消費税等相当額を含みます)が必要です。
2冠達成 恵比寿不動産は物件数No.1 中古マンション数No.1

ジェイパーク戸越銀座ブランシェール 2階の
購入に関するお問い合わせはこちらから

contact us

恵比寿不動産までお気軽にお問い合わせください

お電話でのお問い合わせはこちら:03-6421-0543 10:00 - 19:00 (水曜定休)
恵比寿不動産店舗情報渋谷区東3-25-11 TOKYU REIT恵比寿ビル4階
オフィス内観写真
オフィス外観写真

部屋一覧

売出し待ちお知らせ希望 未公開情報の確認 お問い合わせ
所在階 間取り 専有面積 価格 お気に入り お問い合わせ 詳細
2F
リノベ
3LDK
69.15m2 11,290
お問い合わせ
詳細を見る

最近見た物件

外観

グラーサ渋谷松濤 10階

***

  • 東京都渋谷区神泉町24-1
  • 京王井の頭線「神泉駅」徒歩5分
    JR山手線「渋谷駅」徒歩13分
  • 2LDK  79.12m2
ザ・パークハウス白金二丁目タワーおすすめ画像

ザ・パークハウス白金二丁目タワー 20階

33,990

  • 東京都港区白金2-5-20
  • 東京メトロ南北線「白金台駅」徒歩7分
    東京メトロ南北線「白金高輪駅」徒歩8分
  • 2LDK  70.92m2
クレストプライムタワー芝おすすめ画像

クレストプライムタワー芝 18階

1980

  • 東京都港区芝1-2-1
  • JR山手線「浜松町駅」徒歩6分
    都営三田線「芝公園駅」徒歩7分
  • 1LDK  40.62m2
グランコピエ広尾おすすめ画像

グランコピエ広尾 5階

***

  • 東京都渋谷区恵比寿2-36-7
  • 東京メトロ日比谷線「広尾駅」徒歩9分
    JR山手線「恵比寿駅」徒歩15分
  • 2LDK  55.57m2
クレアシオン六本木おすすめ画像

クレアシオン六本木 2階

2,980

  • 東京都港区六本木3-3-16
  • 東京メトロ南北線「六本木一丁目駅」徒歩2分
    都営大江戸線「六本木駅」徒歩9分
  • 1K  20.52m2
メインステージ四ツ谷おすすめ画像

メインステージ四ツ谷 5階

***

  • 東京都新宿区四谷三栄町6-4
  • JR中央・総武線「四ツ谷駅」徒歩6分
    東京メトロ丸ノ内線「四谷三丁目駅」徒歩7分
  • 1K  24.56m2