5階部分、南東向き住戸!リノベーション物件!
【特徴・設備】
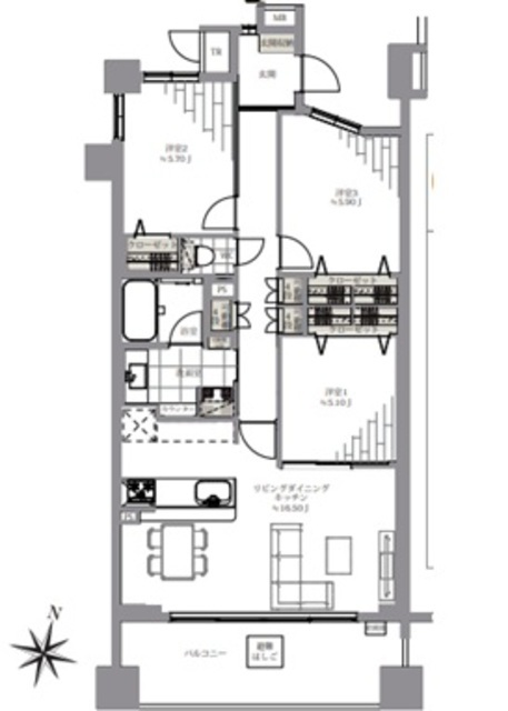
■LDK・洋室1は窓あり
■家具の配置がしやすい間取り
■カウンターキッチン
■3口ガスコンロ
■収納豊富
■独立洗面台
■室内洗濯置き場あり
■アフターサービス保証付
【リノベーション内容】
□フローリング新規貼替
□ユニットバス新規交換
□洗面化粧台新規交換
□トイレ新規交換
□建具・玄関収納新規交換
□壁・天井クロス新規交換
□システムキッチン新規交換
□洗濯水栓・防水パン新規交換
□給湯器新規交換 等





