1階部分、西向き住戸!リノベーション物件!
【特徴・設備】
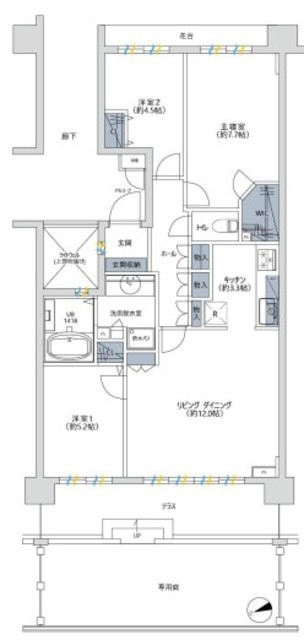
■ペット飼育可
■全室窓あり
■家具の配置がしやすい間取り
■システムキッチン
■3口ガスコンロ
■WICがあり収納豊富
■独立洗面台
■室内洗濯置き場あり
■アフターサービス保証付
【リノベーション内容】
□玄 関人感センサー・玄関収納
□ユニットバス交換
□洗面化粧台交換
□シャワートイレ一体型交換
□キッチン交換
□浄水器一体型水栓・食洗器
□壁・天井クロス貼替
□建具交換
□照明(LDK・洋室・廊下等各所)
□フローリング貼替(LDK ・洋室・廊下)
□フロアタイル貼替(玄関・トイレ・洗面所)
□エアコン設置
□ハウスクリーニング 等





