6階南西向き・三方角部屋!緑豊かな井の頭恩賜公園と多彩な商業エリアが生活圏!
【特徴・設備】
■各居室、上階住戸なしにつき、上階からの足音の心配せず
■ペット飼育可(細則有)
■リビングダイニングに床暖房設置
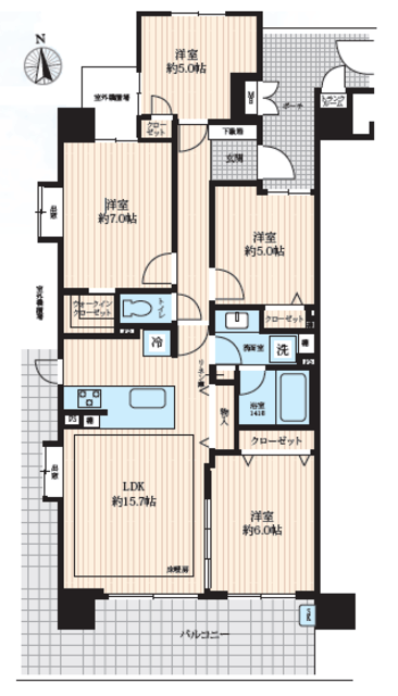
■各居室に収納があり主寝室にはWIC・専用ポーチにトランクルーム
■リビングが見渡せるカウンターキッチン
■中央線・井の頭線の2路線利用可能
■希少な4LDKファミリー向け
【リフォーム内容】※2025年12月中旬完了予定
□システムキッチン・ユニットバス・洗面化粧台・トイレ・給湯器・建具→新規交換
□和室→洋室変更
□全室フローリング張替
□全室クロス貼替
□ダウンライト新設
□フロアタイル交換(玄関・トイレ・洗面室)
□照明器具設置
□ハウスクリーニング等





