オーナーチェンジ物件!4階部分・南向き!最寄り駅徒歩5分!
【特徴・設備】
■東武亀戸線「亀戸水神」駅徒歩5分
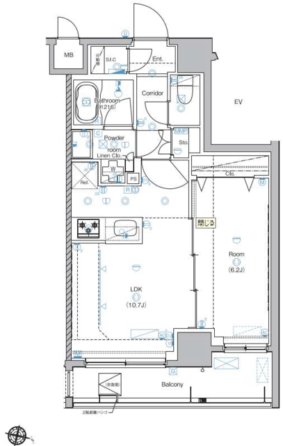
■使い勝手の良い1LDK
■洋室の引戸を開ければ、LDと一体的にも利用可能
■システムキッチン(3口ガスコンロ)
■エアコン
■ウォシュレット
■追い焚き機能付きバス
■三面鏡付き独立洗面台
■安心のオートロック・防犯カメラ・TVモニター付きインターホン
現在総賃料119,700円(サブリース)で賃貸中。表⾯利回りは4.01%で稼働中です。
| 価格 | 3,580万円 |
毎月の返済額 (目安) |
|
|---|---|---|---|
| 築年月 | 2018年5月 | 間取り | 1LDK+SIC |
| 専有面積 | 41.64m2 | 所在階 | 4階 |
| 方角 | 東 | ||
| 所在地 | 東京都墨田区立花3-3-12 | ||
| 交通 | 東武亀戸線「亀戸水神駅」徒歩5分 東武亀戸線「東あずま駅」徒歩5分 |
||
【特徴・設備】
■東武亀戸線「亀戸水神」駅徒歩5分
■使い勝手の良い1LDK
■洋室の引戸を開ければ、LDと一体的にも利用可能
■システムキッチン(3口ガスコンロ)
■エアコン
■ウォシュレット
■追い焚き機能付きバス
■三面鏡付き独立洗面台
■安心のオートロック・防犯カメラ・TVモニター付きインターホン
現在総賃料119,700円(サブリース)で賃貸中。表⾯利回りは4.01%で稼働中です。

| 物件名 | アンベリール亀戸パーク | ||
|---|---|---|---|
| 所在地 | 東京都墨田区立花3-3-12 | ||
| 交通 |
東武亀戸線「亀戸水神駅」徒歩5分 東武亀戸線「東あずま駅」徒歩5分 東武亀戸線「小村井駅」徒歩12分 JR中央・総武線「平井駅」徒歩15分 |
||
| 問合せ番号 | 15138-406 | ||
| 物件特徴 | - | ||
| 物件条件 | ペット可 | ||
| 価格 | 3,580万円 | 管理費 | 14,556円/月 |
| 修繕積立金 | - | その他費用 | - |
| 間取り | 1LDK | 方角 | 東 |
| 専有面積 | 41.64m2 | バルコニー面積 | 6.81m2 |
| 建物構造 | RC | 築年月 | 2018年5月 |
| 総戸数 | 44戸 | 総階数 | 地上9階 |
| 駐車場 | 有 | バイク置き場 | 有 |
| 駐輪場 | 有 | 土地権利 | 所有権 |
| 用途地域 | 商業地域 | 管理形態 | 日勤管理 |
| 管理会社 | クリーンライフ | 分譲会社 | - |
| 施工会社 | 株式会社トヨダ工業 | 設計会社 | - |
| 取引態様 | 仲介 | 小学校学区 | - |
| 周辺情報 | ■ロピア平井島忠ホームズ店(スーパー)まで約3分 ■ローソン 亀戸水神店(コンビニ)まで約4分 ■たちばな薬局(ドラッグストア)まで約5分 |
||
| 現況 | 賃貸中 | 入居/引渡時期 | 相談 |
| 更新日 | 2025年12月5日 | ||
※管理費・修繕積立金内訳確認中
※サブリース契約承継必須
| 頭金 |
|
|---|---|
| 金利 |
|
| 返済年数 | 年 |
※建物周辺情報はGoogleMapを使用しており、実際とは若干異なる場合がございます。
掲載情報について

外観 物件画像1