新規リノベーション物件!小中学校徒歩圏内・通学に便利な立地!ペツト飼育相談可!
【特徴・設備】
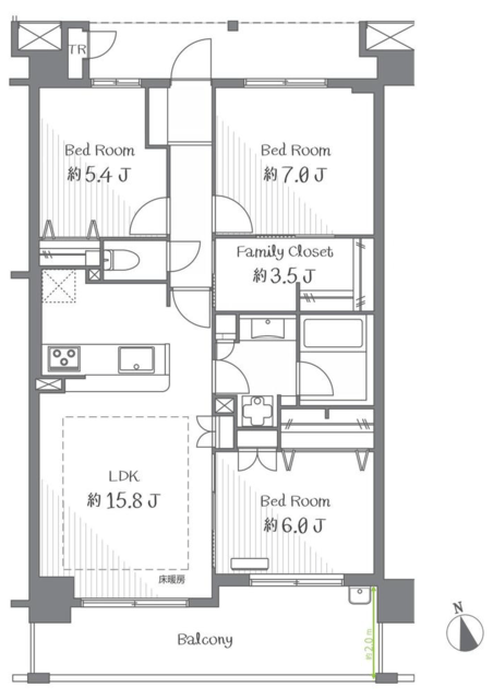
■各居室に収納あり
■トランクルーム、約3.5帖のファミリークローク付
■リビングダイニングに床暖房設置
■家族の会話も弾む対面式キッチン
■プライバシー性の高い専用ポーチ付き
■バルコニーに便利なスロップシンク
■ペット飼育可(細則有)
■アフターサービス保証付き
【リノベーション内容】※2025年8月22日竣工
□システムキッチン、W2600、食洗機
□ユニットバス、1418、浴室換気乾燥機
□洗面台、防水パン
□トイレ、温水洗浄便座
□壁.天井クロス貼替
□フローリング貼替
□フロアタイル張替
□建具交換・新設
□照明器具設置・交換
□工アコン設置(洋室)
□床暖房新設(LDK)
□室内クリーニングなど





