クレッセント武蔵新城イースト 1階

  • 総合トップ
  • 中古マンション
  • 一戸建て・土地
  • 投資・収益物件
  • 売りたい[売却査定]
  • 貸したい[賃料査定]

クレッセント武蔵新城イースト 1階
新着

価格
6,980
毎月の返済額
(目安)
loansimulationIcon
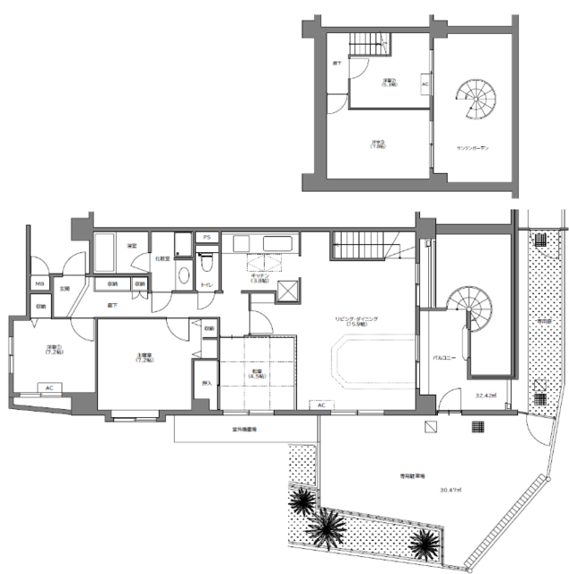
築年月 1999年7月 間取り 5LDK
専有面積 109.83m2 所在階 1階
方角 -
所在地 神奈川県川崎市中原区上小田中2丁目26-18
交通 -

専用利用可能面積180㎡超!メゾネットタイプ庭付きマンション!

【特徴・設備】
■5LDKメゾネットタイプ
■専用利用可能面積181.13㎡・余裕の空間で特別な暮らしを実現
■フルリノベーション済み
■専用ハイルーフ駐車場
■専用庭・サンクンガーデン・物置
■床暖房
■ヘリンボーンが織りなす明るく上品な空間

【リノベーション内容】※2025年11月実施
□キッチン・浴室・洗面・トイレ新規
□フローリング・クロス全室張替
□B1階間取り変更(2部屋化)
□和室琉球畳スタイルetc…

2冠達成 恵比寿不動産は物件数No.1 中古マンション数No.1

クレッセント武蔵新城イースト 1階の
購入に関するお問い合わせはこちらから

contact us

恵比寿不動産までお気軽にお問い合わせください

お電話でのお問い合わせはこちら:03-6421-0543 10:00 - 19:00 (水曜定休)
恵比寿不動産店舗情報渋谷区東3-25-11 TOKYU REIT恵比寿ビル4階
オフィス内観写真
オフィス外観写真
リフォーム無料お見積りサービス

物件概要

物件名 クレッセント武蔵新城イースト
所在地
交通
問合せ番号 15163-1F
物件特徴 -
物件条件 楽器可
価格 6,980 管理費 21,600円/月
修繕積立金 43,710円/月 その他費用 駐車場:14,000円/月
専用庭:230円/月
間取り 5LDK 方角 -
専有面積 109.83m2 バルコニー面積 19.07m2
建物構造 RC 築年月 1999年7月
総戸数 47戸 総階数 地上5階 
駐車場 バイク置き場 -
駐輪場 - 土地権利 所有権
用途地域 - 管理形態 日勤管理
管理会社 モリモトクオリティ 分譲会社 モリモト
施工会社 日産建設 設計会社 -
取引態様 仲介 小学校学区 -
周辺情報 ■まいばすけっと 上小田中店(スーパー)まで徒歩 2分
■マルエツ 武蔵新城店(スーパー)まで徒歩 5分
■セブンイレブン 川崎武蔵中原店(コンビニ)まで徒歩 3分
■サンドラッグ 川崎宮内店(ドラッグストア)まで徒歩 6分
現況 空室 入居/引渡時期 即時
更新日 2025年12月7日

備考

■その他面積
・サンクンガーデン21.76㎡
・専用駐車場30.47㎡

部屋設備

  • バス・トイレ別
  • 独立洗面台
  • 温水洗浄便座
  • システムキッチン
  • ガスコンロ
  • フローリング
  • メゾネット
  • 専用庭
  • 角部屋
  • リノベーション

建物設備

  • 駐車場
  • CATV
  • インターネット
  • 楽器可

クレッセント武蔵新城イースト 1階のローンシミュレーション

借入金額
6,980
頭金
0万円
毎月の返済額
頭金
  • 支払い額万円※半角数字
金利
  • %※半角数字
返済年数
  • ※元利均等返済方式、最大優遇の場合で計算しています。
  • ※融資には個別審査があり、審査結果により、貸出条件(金利・貸出期間・借入額)が異なる場合がございます。
  • ※不動産のご購入に際しましては物件価格以外にその他諸費用が必要となります。
    諸費用に関する詳細につきましてはお問い合わせ下さいませ。

周辺地図

※建物周辺情報はGoogleMapを使用しており、実際とは若干異なる場合がございます。

掲載情報について

  • ※本掲載情報と現況に差異がある場合、現況を優先いたします。
  • ※掲載物件は売却済あるいは売出中止となる場合もあります。
  • ※掲載写真やパース(絵)、または間取図に描かれている家具や車などは、価格に含まれておりません。また、過去に撮影したものをそのまま利用している場合があり、名称・外観・背景等、実際のものとは異なる場合がございます。予めご了承ください。
  • ※仲介物件には所定の仲介手数料(消費税等相当額を含みます)が必要です。
2冠達成 恵比寿不動産は物件数No.1 中古マンション数No.1

クレッセント武蔵新城イースト 1階の
購入に関するお問い合わせはこちらから

contact us

恵比寿不動産までお気軽にお問い合わせください

お電話でのお問い合わせはこちら:03-6421-0543 10:00 - 19:00 (水曜定休)
恵比寿不動産店舗情報渋谷区東3-25-11 TOKYU REIT恵比寿ビル4階
オフィス内観写真
オフィス外観写真

部屋一覧

売出し待ちお知らせ希望 未公開情報の確認 お問い合わせ
所在階 間取り 専有面積 価格 お気に入り お問い合わせ 詳細
新着
1F
リノベ
5LDK
109.83m2 6,980
お問い合わせ
詳細を見る

最近見た物件

クレッセント武蔵新城イーストおすすめ画像

クレッセント武蔵新城イースト 1階

6,980

  • 神奈川県川崎市中原区上小田中2丁目26-18
  • -
  • 5LDK  109.83m2
画像準備中

ネオコーポ芦花公園 5階

5,680

  • 東京都世田谷区南烏山1-16-22
  • 京王線「八幡山駅」徒歩8分
    京王線「芦花公園駅」徒歩8分
  • 3LDK  69.30m2