武蔵小山・戸越徒歩圏内!最上階リノベマンション!
【特徴・設備】
■荏原中延駅・戸越公園駅・戸越駅・武蔵小山駅5駅徒歩圏内の利便性が高いマンション
■オートロック完備でセキュリティに配慮
■戸越銀座商店街・武蔵小山商店街が近く、活気あるエリアを日常使いできる
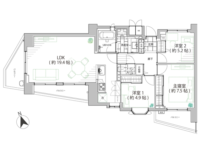
■全居室バルコニー付き採光良好
■日常生活にフィットするナチュラルなテイストを意識したデザイン
■家具やインテリアとの組み合わせを楽しめる
■家事のしやすさ、機能性にこだわった最新設備を導入
■LDKに床暖房あり
■キッチン・浴室に窓あり
【リノベーション内容】
□新規フローリング張り
□建具、洋室収納、玄関収納、新規交換
□天井、壁クロス全室貼替え
□玄関床新規タイル貼リ
□水廻リ床新規塩ビタイル貼り
□照明器具、ガス給湯器新規交換
□洗濯機パン、洗濯水栓新規交換
□エアコン LOK、洋室1 新規取付
□システムキッチン新規交換
・浄水器付水栓/ディスポーザー/人造大理石カウンター/食器洗乾燥機付/水なし両面グリル付き3口コン口
□ユニツトバス(浴室乾燥機付)新規交換
□LED照明付洗面化粧台新規交換
□暖房温水便座付きトイレ新規交換
□ハウスクリーニング他





