新規リノベーション済物件!2階南向き・2LDK+WIC!
【特徴・設備】
■安心のオートロック・モニター付きインターフォン・防犯カメラ
■ペット飼育可(細則有)
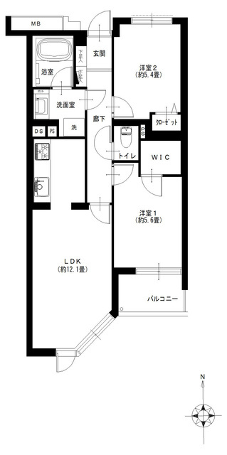
■洋室1にウォークインクローゼットあり
■玄関人感センサー設置
■リノベーション済みのきれいなお部屋
■小学校まで徒歩5分、お子様の通学も安心です
【リノベーション内容】※2025年10月完了
□給湯器交換
□システムキッチン交換
□ユニットバス交換
□洗面台交換
□トイレ交換
□全室クロス張替
□全フローリング張替
□全建具交換
□CF張替
□下足入れ交換
□洗濯水栓器具交換
□防水パン交換
□スイッチパネル設置
□ダウンライト設置
□照明器具設置
□玄関人感センサー設置





