自然の豊かさと吉祥寺の利便を享受する北町アドレス!三井不動産(株)旧分譲、最上階プレミア住戸!全室採光有り、日当たり良好、富士山ビュー(天候次第)!
【特徴・設備】
■修繕金積立金総額 68,949,034円 (2025年7月末時点)
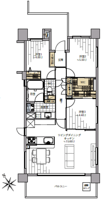
■最上階7階部分・角部屋、陽当り・眺望良好
■ファミリーに最適な3LDKタイプ
■各居室に収納があり洋室2にはWIC・共用スペースにも収納有り
■外壁タイル貼り
■安心のオートロック
■ペット飼育可(細則有)
【リノベーション内容】※2026年2月上旬完成予定
□フローリング新規貼替
□ユニットバス新規交換
□洗面化粧台新規交換
□トイレ新規交換
□システムキッチン新規交換
□壁・天井クロス新規交換
□建具・玄関収納新規交換
□給湯器新規交換
□洗濯水栓・防水パン新規交換





