4階部分・南向き・角住戸!リノベーション済み!3LDK+WIC!
【特徴・設備】
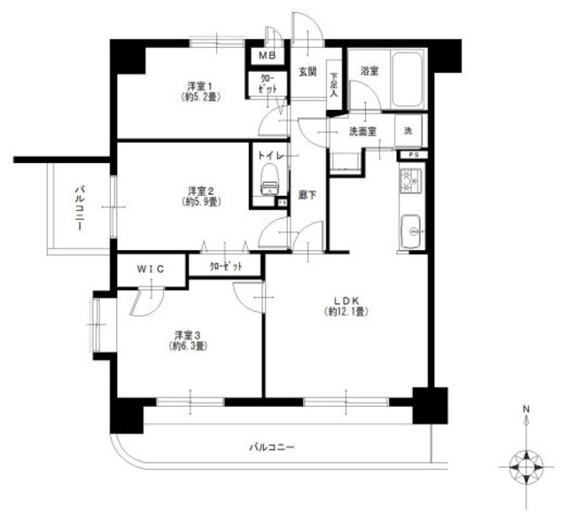
■2面バルコニー、日当たり・通風良好
■ファミリーに最適な3LDKタイプ
■各居室に収納があり洋室3にはウォークインクローゼットあり
■小・中学校まで徒歩4分、お子様の通学も安心です
■フラット35適合物件
■安心のオートロック・モニター付きインターホン・防犯カメラ設置
■不在時に便利な宅配ボックス
【リノベーション内容】※2025年8月完了
□システムキッチン交換
□ユニットバス交換
□洗面台交換
□トイレ交換
□全室クロス張替
□全フローリング張替
□全建具交換
□CF張替
□下足入れ交換
□洗濯水栓器具交換
□防水パン交換
□スイッチパネル設置
□ダウンライト設置
□照明器具設置
□玄関人感センサー設置
