シンエイマンション第2蔵前 6階

  • 総合トップ
  • 中古マンション
  • 一戸建て・土地
  • 投資・収益物件
  • 売りたい[売却査定]
  • 貸したい[賃料査定]

シンエイマンション第2蔵前 6階

価格
5,590
毎月の返済額
(目安)
loansimulationIcon
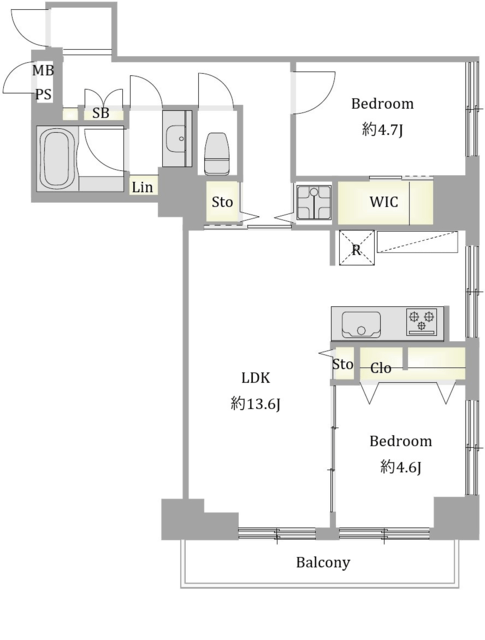
築年月 1977年5月 間取り 2LDK+WIC
専有面積 58.21m2 所在階 6階
方角
所在地 東京都台東区蔵前3-19-8
交通 都営浅草線「蔵前駅」徒歩1分
都営大江戸線「蔵前駅」徒歩3分

新規リノベーション物件!6階部分・角部屋・陽当たり良好!

【特徴・設備】
■2017 年大規模修繕工事済
■「蔵前」駅徒歩1分の好立地
■2駅3路線利用可能
■各居室に収納があり主寝室にはWIC・共用スペースにも収納有り
■アフターサービス保証付き
■小学校まで徒歩5分、お子様の通学も安心です
■スーパー・コンビニも近く住環境良好

【リノベーション内容】
□システムキッチン交換(浄水機能付・食洗器付)
□ユニットバス交換(浴室換気乾燥機能付)
□給湯器交換(追炊き機能付)
□クロス貼替
□フローリング・フロアタイル貼替
□建具・玄関収納交換
□洗面化粧台交換
□トイレ交換
□照明器具・ダウンライト新規取付
□ハウスクリーニング等

2冠達成 恵比寿不動産は物件数No.1 中古マンション数No.1

シンエイマンション第2蔵前 6階の
購入に関するお問い合わせはこちらから

contact us

恵比寿不動産までお気軽にお問い合わせください

お電話でのお問い合わせはこちら:03-6421-0543 10:00 - 19:00 (水曜定休)
恵比寿不動産店舗情報渋谷区東3-25-11 TOKYU REIT恵比寿ビル4階
オフィス内観写真
オフィス外観写真
リフォーム無料お見積りサービス

物件概要

物件名 シンエイマンション第2蔵前
所在地
交通
問合せ番号 15563-602
物件特徴 -
物件条件 -
価格 5,590 管理費 17,740円/月
修繕積立金 14,220円/月 その他費用 -
間取り 2LDK 方角
専有面積 58.21m2 バルコニー面積 4.59m2
建物構造 SRC 築年月 1977年5月
総戸数 25戸 総階数 地上9階 
駐車場 有 月額 30,000円 バイク置き場
駐輪場 有 月額 2,400円 土地権利 所有権
用途地域 商業地域  管理形態 巡回管理
管理会社 株式会社辰栄興発 分譲会社 株式会社辰栄興発
施工会社 安藤建設株式会社 設計会社 -
取引態様 仲介 小学校学区 -
周辺情報 ■まいばすけっと蔵前駅前店・・・徒歩1分
■ローソン寿三丁目・・・・・・・徒歩1分
■みどり薬局・・・・・・・・・・徒歩4分
■済美公園・・・・・・・・・・・徒歩4分
■蔵前まえだクリニック・・・・・徒歩3分
■蔵前郵便局・・・・・・・・・・徒歩4分
■台東区立蔵前小学校・・・・・・徒歩5分
現況 空室 入居/引渡時期 相談
更新日 2026年2月23日

備考

部屋設備

  • バス・トイレ別
  • 独立洗面台
  • 追い焚き
  • 浴室乾燥機
  • システムキッチン
  • 食器洗浄機
  • 浄水器
  • ウォークインクローゼット
  • フローリング
  • 角部屋
  • 南向き
  • リノベーション

建物設備

  • エレベーター
  • 駐車場
  • 駐輪場

シンエイマンション第2蔵前 6階のローンシミュレーション

借入金額
5,590
頭金
0万円
毎月の返済額
頭金
  • 支払い額万円※半角数字
金利
  • %※半角数字
返済年数
  • ※元利均等返済方式、最大優遇の場合で計算しています。
  • ※融資には個別審査があり、審査結果により、貸出条件(金利・貸出期間・借入額)が異なる場合がございます。
  • ※不動産のご購入に際しましては物件価格以外にその他諸費用が必要となります。
    諸費用に関する詳細につきましてはお問い合わせ下さいませ。

周辺地図

※建物周辺情報はGoogleMapを使用しており、実際とは若干異なる場合がございます。

掲載情報について

  • ※本掲載情報と現況に差異がある場合、現況を優先いたします。
  • ※掲載物件は売却済あるいは売出中止となる場合もあります。
  • ※掲載写真やパース(絵)、または間取図に描かれている家具や車などは、価格に含まれておりません。また、過去に撮影したものをそのまま利用している場合があり、名称・外観・背景等、実際のものとは異なる場合がございます。予めご了承ください。
  • ※仲介物件には所定の仲介手数料(消費税等相当額を含みます)が必要です。
2冠達成 恵比寿不動産は物件数No.1 中古マンション数No.1

シンエイマンション第2蔵前 6階の
購入に関するお問い合わせはこちらから

contact us

恵比寿不動産までお気軽にお問い合わせください

お電話でのお問い合わせはこちら:03-6421-0543 10:00 - 19:00 (水曜定休)
恵比寿不動産店舗情報渋谷区東3-25-11 TOKYU REIT恵比寿ビル4階
オフィス内観写真
オフィス外観写真

部屋一覧

売出し待ちお知らせ希望 未公開情報の確認 お問い合わせ
所在階 間取り 専有面積 価格 お気に入り お問い合わせ 詳細
6F
リノベ
2LDK
58.21m2 5,590
お問い合わせ
詳細を見る