山手ビル 5階 成約済みの部屋 15573-502

  • 総合トップ
  • 中古マンション
  • 一戸建て・土地
  • 投資・収益物件
  • 売りたい[売却査定]
  • 貸したい[賃料査定]

山手ビル 成約済み物件 (15573-502)

こちらのお部屋は既に成約済みです。

お手数ですが、建物詳細ページより同マンションで売り出し中の別のお部屋をご覧いただくか、
物件検索より最新の物件をお探しください。

価格
***
毎月の返済額
(目安)
loansimulationIcon
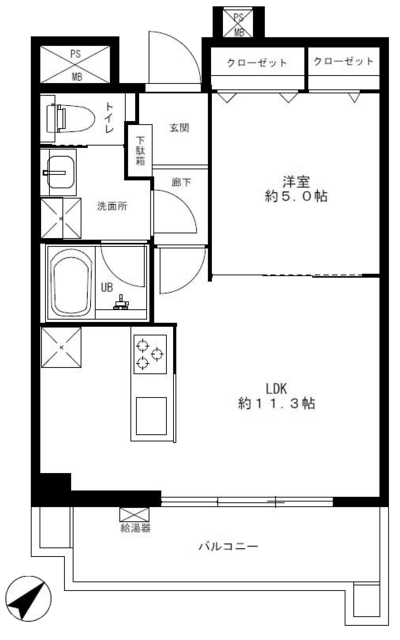
築年月 1978年9月 間取り 1LDK
専有面積 37.97m2 所在階 5階
方角 南東
所在地 東京都中野区東中野4-6-5
交通 都営大江戸線「東中野駅」徒歩3分
JR中央・総武線「東中野駅」徒歩3分

新規内装リノベーション・新築感覚で入居可!南東向きにつき陽当り良好!

【特徴・設備】
■耐震基準適合証明書取得可能
■『東中野』駅徒歩3分の好立地
■スーパー・コンビニ徒歩2分圏内
■会話の弾む対面キッチン
■各居室エアコン設置可
■安心のモニター付きインターホン

【リノベーション内容】※令和7年12月17日完工済み
□システムキッチン新規交換(LIXIL製:浄水器一体型水栓)
□ユニットバス新規交換(LIXIL製:浴室乾燥機/追焚機能)
□洗面化粧台新規交換(Panasonic製:シャワー水栓/ミラーキャビネット)
□トイレ新規交換(LIXIL製:シャワートイレ一体型便器)
□フローリング新規施工
□全室クロス新規張替
□フロアタイル張替(洗面・トイレ・玄関)
□建具新規交換
□下足入新規交換
□クローゼット新規交換
□各居室照明器具設置
□給湯器新規交換
□モニター付きインターホン新規交換
□洗濯パン・水栓金具新規交換

2冠達成 恵比寿不動産は物件数No.1 中古マンション数No.1

物件概要

物件名 山手ビル
所在地
交通
問合せ番号 15573-502
物件特徴 -
物件条件 -
価格 *** 管理費 ***円/月
修繕積立金 ***円/月 その他費用 ***
間取り 1LDK 方角 南東
専有面積 37.97m2 バルコニー面積 6.91m2
建物構造 RC 築年月 1978年9月
総戸数 12戸 総階数 地上6階 地下1階
駐車場 - バイク置き場
駐輪場 土地権利 所有権
用途地域 近隣商業地域 管理形態 自主管理
管理会社 - 分譲会社 田中土建工業株式会社
施工会社 田中土建工業株式会社 設計会社 -
取引態様 仲介 小学校学区 -
周辺情報 ■サミットストア東中野店……………………徒歩2分(約150m)
■ライフ東中野店………………………………徒歩4分(約280m)
■ローソンストア100東中野店……………徒歩1分(約50m)
■白桜小学校……………………………………徒歩10分(約760m)
■中野東中学校…………………………………徒歩7分(約560m)
■東中野しらゆり保育園………………………徒歩3分(約200m)

現況 成約済 入居/引渡時期 ***
更新日 2026年2月24日

備考

部屋設備

  • バス・トイレ別
  • 独立洗面台
  • 追い焚き
  • 温水洗浄便座
  • 浴室乾燥機
  • システムキッチン
  • カウンターキッチン
  • 浄水器
  • ガスコンロ
  • フローリング
  • 南向き
  • リノベーション

建物設備

  • エレベーター
  • TVドアホン
  • 駐輪場
  • BS
  • CS
  • CATV

周辺地図

※建物周辺情報はGoogleMapを使用しており、実際とは若干異なる場合がございます。

掲載情報について

  • ※本掲載情報と現況に差異がある場合、現況を優先いたします。
  • ※掲載物件は売却済あるいは売出中止となる場合もあります。
  • ※掲載写真やパース(絵)、または間取図に描かれている家具や車などは、価格に含まれておりません。また、過去に撮影したものをそのまま利用している場合があり、名称・外観・背景等、実際のものとは異なる場合がございます。予めご了承ください。
  • ※仲介物件には所定の仲介手数料(消費税等相当額を含みます)が必要です。
2冠達成 恵比寿不動産は物件数No.1 中古マンション数No.1

部屋一覧

売出し待ちお知らせ希望 未公開情報の確認 お問い合わせ
所在階 間取り 専有面積 価格 お気に入り お問い合わせ 詳細

最近見た物件

東急ドエルアルス弦巻1号棟おすすめ画像

東急ドエルアルス弦巻1号棟 5階

***

  • 東京都世田谷区弦巻4-33-5
  • 東急田園都市線「桜新町駅」徒歩12分
    東急世田谷線「上町駅」徒歩11分
  • 4LDK  118.39m2
クレッセント武蔵新城イーストおすすめ画像

クレッセント武蔵新城イースト 1階

6,480

  • 神奈川県川崎市中原区上小田中2丁目26-18
  • -
  • 5LDK  109.83m2