開放感を浴びる専用屋上付区画!3面採光角住戸!眺望採光共に良好
【特徴・設備】
■リフォーム済み
■小粋な内装
■3階建て最上階、陽当り・眺望良好
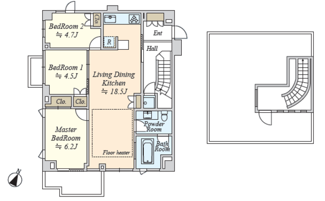
■リビングダイニングに床暖房設置
■不在時に便利な宅配ボックス
■ペット飼育可(細則有、原則小型犬を想定)
【リフォーム内容】※2025年11月完工
□キッチン交換
□バス一部交換
□洗面化粧台交換
□建具交換
□フローリング張
□トイレ交換
□間接照明・ダウンライト新規設置
□クロス全面張替
□給排水配管更新(専有部内)
□給湯器交換
□ハウスクリーニング





