クレッセント等々力緑地2 3階

  • 総合トップ
  • 中古マンション
  • 一戸建て・土地
  • 投資・収益物件
  • 売りたい[売却査定]
  • 貸したい[賃料査定]

クレッセント等々力緑地2 3階
新着

価格
5,190
毎月の返済額
(目安)
loansimulationIcon
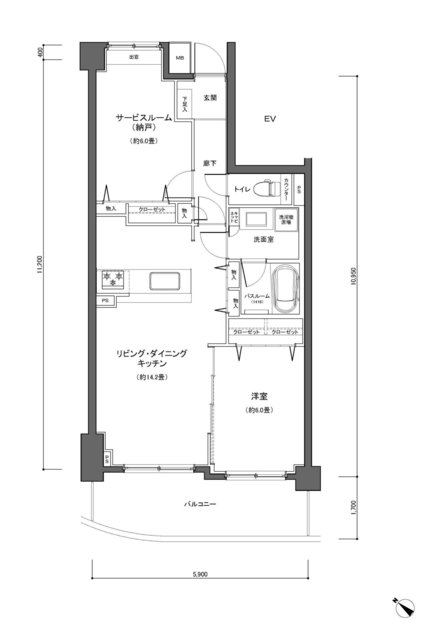
築年月 1996年10月 間取り 1SLDK
専有面積 60.88m2 所在階 3階
方角 南西
所在地 神奈川県川崎市中原区上小田中6-34-35
交通 -

目の前公園につき、陽当たり良好! 緑豊かな公園が点在する、静かな住環境!

【特徴・設備】
■浴室1416サイズ
■2022年大規模修繕工事実施済み
■オートロック・宅配ボックス完備
■外壁タイル貼り
■モニター付きインターホン/防犯カメラ
■家具付きマンション
■フラット35適合物件

【リノベーション内容】
□給湯器交換
□システムキッチン交換
□ユニットバス交換
□洗面化粧台交換
□トイレ交換
□全室クロス張替
□全室フローリング張替
□全室建具交換
□フロアタイル張替
□配管部分更新
□全室照明設置
□ハウスクリーニング

2冠達成 恵比寿不動産は物件数No.1 中古マンション数No.1

クレッセント等々力緑地2 3階の
購入に関するお問い合わせはこちらから

contact us

恵比寿不動産までお気軽にお問い合わせください

お電話でのお問い合わせはこちら:03-6421-0543 10:00 - 19:00 (水曜定休)
恵比寿不動産店舗情報渋谷区東3-25-11 TOKYU REIT恵比寿ビル4階
オフィス内観写真
オフィス外観写真
リフォーム無料お見積りサービス

物件概要

物件名 クレッセント等々力緑地2
所在地
交通
問合せ番号 15634-302
物件特徴 -
物件条件 -
価格 5,190 管理費 15,200円/月
修繕積立金 18,810円/月 その他費用 -
間取り 1SLDK 方角 南西
専有面積 60.88m2 バルコニー面積 12.11m2
建物構造 RC 築年月 1996年10月
総戸数 26戸 総階数 地上5階 
駐車場 有 月額 19,000円 バイク置き場 有 月額 500円
駐輪場 有 月額 200~300円(1台目無償) 土地権利 所有権
用途地域 第一種住居地域 管理形態 日勤管理
管理会社 (株)モリモトクオリティ 分譲会社 (株)モリモト
施工会社 (株)間組 設計会社 -
取引態様 仲介 小学校学区 -
周辺情報 ■セブンイレブン川崎宮内4丁目店 ・・約270m
■ライフ宮内ニ丁目店・・・・・・・・約550m
■まいばすけっと上小田中6丁目店 ・・約450m
■中神地公園・・・・・・・・・・・・約140m
■等々力緑地・・・・・・・・・・・・約650m
現況 空室 入居/引渡時期 即時
更新日 2026年1月29日

備考

アルコープ面積:1.14㎡

部屋設備

  • バス・トイレ別
  • 独立洗面台
  • 追い焚き
  • 温水洗浄便座
  • 浴室乾燥機
  • システムキッチン
  • カウンターキッチン
  • 食器洗浄機
  • エアコン
  • フローリング
  • 南向き
  • リノベーション
  • 家具付き

建物設備

  • エレベーター
  • オートロック
  • 宅配ボックス
  • TVドアホン
  • 駐車場
  • バイク置き場
  • 駐輪場
  • 防犯カメラ
  • フラット35

クレッセント等々力緑地2 3階のローンシミュレーション

借入金額
5,190
頭金
0万円
毎月の返済額
頭金
  • 支払い額万円※半角数字
金利
  • %※半角数字
返済年数
  • ※元利均等返済方式、最大優遇の場合で計算しています。
  • ※融資には個別審査があり、審査結果により、貸出条件(金利・貸出期間・借入額)が異なる場合がございます。
  • ※不動産のご購入に際しましては物件価格以外にその他諸費用が必要となります。
    諸費用に関する詳細につきましてはお問い合わせ下さいませ。

周辺地図

※建物周辺情報はGoogleMapを使用しており、実際とは若干異なる場合がございます。

掲載情報について

  • ※本掲載情報と現況に差異がある場合、現況を優先いたします。
  • ※掲載物件は売却済あるいは売出中止となる場合もあります。
  • ※掲載写真やパース(絵)、または間取図に描かれている家具や車などは、価格に含まれておりません。また、過去に撮影したものをそのまま利用している場合があり、名称・外観・背景等、実際のものとは異なる場合がございます。予めご了承ください。
  • ※仲介物件には所定の仲介手数料(消費税等相当額を含みます)が必要です。
2冠達成 恵比寿不動産は物件数No.1 中古マンション数No.1

クレッセント等々力緑地2 3階の
購入に関するお問い合わせはこちらから

contact us

恵比寿不動産までお気軽にお問い合わせください

お電話でのお問い合わせはこちら:03-6421-0543 10:00 - 19:00 (水曜定休)
恵比寿不動産店舗情報渋谷区東3-25-11 TOKYU REIT恵比寿ビル4階
オフィス内観写真
オフィス外観写真

部屋一覧

売出し待ちお知らせ希望 未公開情報の確認 お問い合わせ
所在階 間取り 専有面積 価格 お気に入り お問い合わせ 詳細
新着
3F
リノベ
1SLDK
60.88m2 5,190
お問い合わせ
詳細を見る