3駅4路線利用可・ゆとりのLDK&南向き住戸です。
【特徴・設備】
■5階部分・南向き、陽当り・眺望良好
■各居室に収納付き、共用スペースにも収納有り
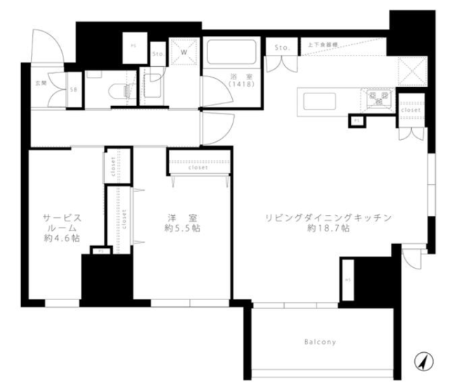
■広々とした18.7帖のLDK
■人気の対面キッチン
■安心のオートロック・モニター付きインターホン
■不在時に便利な宅配ボックス
| 価格 | 1億6,980万円 |
毎月の返済額 (目安) |
|
|---|---|---|---|
| 築年月 | 2020年8月 | 間取り | 1SLDK |
| 専有面積 | 70.11m2 | 所在階 | 5階 |
| 方角 | 南 | ||
| 所在地 | 東京都文京区湯島4-5-5 | ||
| 交通 | 東京メトロ千代田線「湯島駅」徒歩4分 都営大江戸線「本郷三丁目駅」徒歩7分 |
||
【特徴・設備】
■5階部分・南向き、陽当り・眺望良好
■各居室に収納付き、共用スペースにも収納有り
■広々とした18.7帖のLDK
■人気の対面キッチン
■安心のオートロック・モニター付きインターホン
■不在時に便利な宅配ボックス

| 物件名 | オープンレジデンシア文京本郷台 | ||
|---|---|---|---|
| 所在地 | 東京都文京区湯島4-5-5 | ||
| 交通 |
東京メトロ千代田線「湯島駅」徒歩4分 都営大江戸線「本郷三丁目駅」徒歩7分 東京メトロ丸ノ内線「本郷三丁目駅」徒歩9分 都営大江戸線「上野御徒町駅」徒歩9分 東京メトロ銀座線「上野広小路駅」徒歩9分 |
||
| 問合せ番号 | 15657-502 | ||
| 物件特徴 | - | ||
| 物件条件 | ペット可 | ||
| 価格 | 1億6,980万円 | 管理費 | 14,930円/月 |
| 修繕積立金 | 6,310円/月 | その他費用 | その他:2,060円/月 |
| 間取り | 1SLDK | 方角 | 南 |
| 専有面積 | 70.11m2 | バルコニー面積 | 6.84m2 |
| 建物構造 | RC | 築年月 | 2020年8月 |
| 総戸数 | 44戸 | 総階数 | 地上15階 |
| 駐車場 | 有 月額 30,000~35,000円(空きなし) | バイク置き場 | 有 月額 2,500円(空きなし) |
| 駐輪場 | 有 月額 200~300円(空きなし) | 土地権利 | 所有権 |
| 用途地域 | 第二種住居地域、商業地域 | 管理形態 | 日勤管理 |
| 管理会社 | 日本ハウズイング株式会社 | 分譲会社 | - |
| 施工会社 | ナカノフドー建設 | 設計会社 | 長谷建築設計事務所 |
| 取引態様 | 仲介 | 小学校学区 | - |
| 周辺情報 | ■サミットストア湯島天神南店(スーパー)まで徒歩 2分 ■業務スーパー 上野広小路店(スーパー)まで徒歩 6分 ■ファミリーマート 文京本郷店(コンビニ)まで徒歩 3分 ■スギ薬局 上野広小路店(ドラッグストア)まで徒歩 6分 |
||
| 現況 | 居住中 | 入居/引渡時期 | 相談 |
| 更新日 | 2026年1月30日 | ||
| 頭金 |
|
|---|---|
| 金利 |
|
| 返済年数 | 年 |
※建物周辺情報はGoogleMapを使用しており、実際とは若干異なる場合がございます。
掲載情報について

室内写真 物件画像1