「桜木町」を生活圏に。都市の躍動と四季折々の自然と暮らす。新規リノベーション済み+眺望の良い部屋位置。
【特徴・設備】
■3階部分・南向き
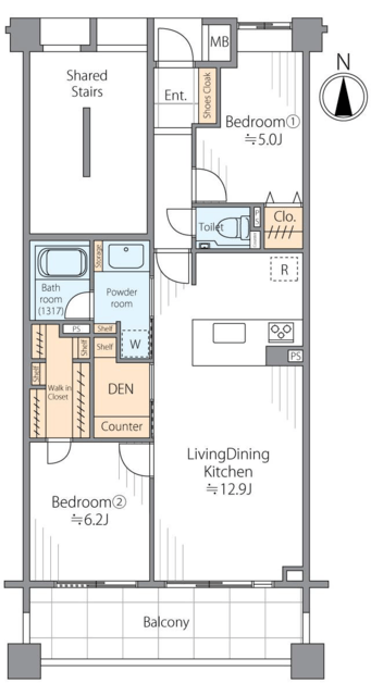
■大容量のWICと勉強や仕事部屋として適したDENスペースと約67㎡あるゆとりのある2LDKの間取り
■リビングが見渡せる対面式キッチン
■前面が図書館で眺望に圧迫感の無い部屋位置です
■ペット飼育可(細則有)
■24時間換気システム
■オートロック・宅配ボックス
【リノベーション内容】※2026年2月完成
□システムキッチン交換
□ユニットバス交換
□トイレ交換
□クロス全室張替え
□フローリング張替え
□建具交換
□フロアタイル張替え
□照明交換
□洗濯水栓交換
□防水パン交換
□分電盤交換
□ハウスクリーニング等
