2026年3月新築物件!メゾネットタイプ・1SLDK!
【特徴・設備】
■JR京浜東北線「大森」駅より徒歩8分
■戸建て感覚のメゾネットタイプ(1~3階)
■リビングダイニングに床暖房設置
■ウォークインクローゼットなど収納豊富
■プライバシー性の高い専用ポーチ付き
| 価格 | ***万円 |
毎月の返済額 (目安) |
|
|---|---|---|---|
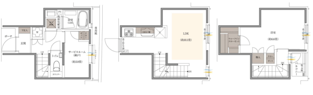
| 築年月 | 2026年3月 | 間取り | 1SLDK+WIC |
| 専有面積 | 57.94m2 | 所在階 | 1階 |
| 方角 | 南東 | ||
| 所在地 | 東京都大田区山王1-33 | ||
| 交通 | JR京浜東北線「大森駅」徒歩8分 都営浅草線「馬込駅」徒歩17分 |
||
【特徴・設備】
■JR京浜東北線「大森」駅より徒歩8分
■戸建て感覚のメゾネットタイプ(1~3階)
■リビングダイニングに床暖房設置
■ウォークインクローゼットなど収納豊富
■プライバシー性の高い専用ポーチ付き

| 物件名 | カーサソサエティ大森山王ザ・コート | ||
|---|---|---|---|
| 所在地 | 東京都大田区山王1-33 | ||
| 交通 |
JR京浜東北線「大森駅」徒歩8分 都営浅草線「馬込駅」徒歩17分 京急本線「大森海岸駅」徒歩19分 |
||
| 問合せ番号 | 15683-1F | ||
| 物件特徴 | 低層マンション | ||
| 物件条件 | - | ||
| 価格 | ***万円 | 管理費 | ***円/月 |
| 修繕積立金 | ***円/月 | その他費用 | *** |
| 間取り | 1SLDK | 方角 | 南東 |
| 専有面積 | 57.94m2 | バルコニー面積 | 1.89m2 |
| 建物構造 | 鉄骨造 | 築年月 | 2026年3月 |
| 総戸数 | 7戸 | 総階数 | 地上3階 |
| 駐車場 | 無 | バイク置き場 | - |
| 駐輪場 | - | 土地権利 | - |
| 用途地域 | 第一種低層住居専用地域 | 管理形態 | 巡回管理 |
| 管理会社 | (株)ガイアフィールド | 分譲会社 | (株)ダイナセル |
| 施工会社 | (株)ガイアフィールド | 設計会社 | (株)ガイアフィールド一級建築士事務所 |
| 取引態様 | 仲介 | 小学校学区 | - |
| 周辺情報 | ■まいばすけっと 山王銀座店(スーパー)まで徒歩 5分 ■オオゼキ 大森駅前店(スーパー)まで徒歩 7分 ■まいばすけっと 南馬込店(コンビニ)まで徒歩 2分 ■ドラッグストアマツモトキヨシ 大田山王店(ドラッグストア)まで徒歩 2分 |
||
| 現況 | 成約済 | 入居/引渡時期 | *** |
| 更新日 | 2026年2月20日 | ||
ポーチ面積:1.65㎡
※建物周辺情報はGoogleMapを使用しており、実際とは若干異なる場合がございます。
掲載情報について

外観 物件画像1