エレベーター玄関直結!駐車場専用使用権付!ルーフガーデン全面!
【特徴・設備】
■4階建て4階部分、三方向角部屋
■陽当り・眺望・通風良好
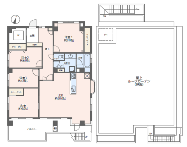
■110㎡超・4LDK
■リビングが見渡せる対面式キッチン
■約20帖の広々としたLDK
■フルリフォーム施工済みのきれいなお部屋
■ペット飼育可(細則有)
■小学校まで徒歩7分、お子様の通学も安心です
【リフォーム内容】※2025年11月末完了
□キッチン交換
□浴室交換
□トイレ交換
□洗面化粧台交換
□壁張替え
□床張替え
□ハウスクリーニング等 etc





