メナー東大井 7階

  • 総合トップ
  • 中古マンション
  • 一戸建て・土地
  • 投資・収益物件
  • 売りたい[売却査定]
  • 貸したい[賃料査定]

メナー東大井 7階
新着

価格
6,199
毎月の返済額
(目安)
loansimulationIcon
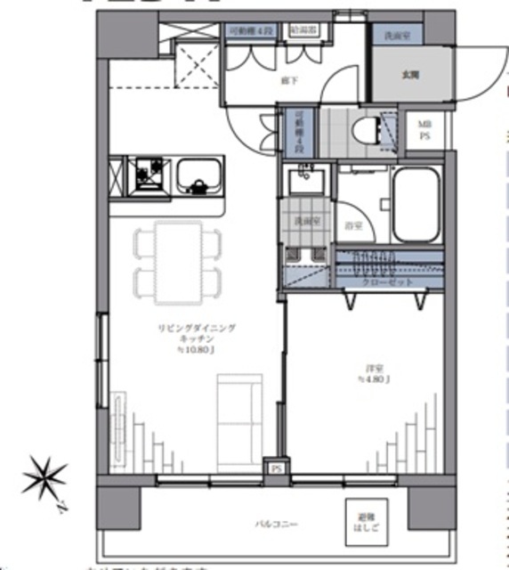
築年月 1985年11月 間取り 1LDK
専有面積 38.88m2 所在階 7階
方角 北東
所在地 東京都品川区東大井5-7-6
交通 JR京浜東北線「大井町駅」徒歩3分
京急本線「鮫洲駅」徒歩7分

7階部分、北東向き角部屋!リノベーション物件!

【特徴・設備】
■全室窓あり
■二面採光
■家具の配置がしやすい間取り
■カウンターキッチン
■2口ガスコンロ
■収納あり
■独立洗面台
■室内洗濯置き場あり
■アフターサービス保証付

【リノベーション内容】
□フローリング新規貼替
□ユニットバス新規交換
□洗面化粧台新規交換
□トイレ新規交換
□建具・玄関収納新規交換
□壁・天井クロス新規交換
□システムキッチン新規交換
□給排水管新規交換(一部既存)
□洗濯水栓・防水パン新規交換
□給湯器新規交換 等

2冠達成 恵比寿不動産は物件数No.1 中古マンション数No.1

メナー東大井 7階の
購入に関するお問い合わせはこちらから

contact us

恵比寿不動産までお気軽にお問い合わせください

お電話でのお問い合わせはこちら:03-6421-0543 10:00 - 19:00 (水曜定休)
恵比寿不動産店舗情報渋谷区東3-25-11 TOKYU REIT恵比寿ビル4階
オフィス内観写真
オフィス外観写真
リフォーム無料お見積りサービス

物件概要

物件名 メナー東大井
所在地
交通
問合せ番号 1573-701
物件特徴 -
物件条件 -
価格 6,199 管理費 14,370円/月
修繕積立金 17,000円/月 その他費用 -
間取り 1LDK 方角 北東
専有面積 38.88m2 バルコニー面積 -
建物構造 SRC 築年月 1985年11月
総戸数 23戸 総階数 地上10階 
駐車場 - バイク置き場 -
駐輪場 - 土地権利 -
用途地域 - 管理形態 巡回管理
管理会社 - 分譲会社 -
施工会社 大旺建設(株) 設計会社 -
取引態様 仲介 小学校学区 立会小学校
周辺情報 ■まいばすけっと ゼームス坂店(スーパー)まで約3分
■ファミリーマート 東大井店(コンビニ)まで約1分
■エビスヤ薬局(ドラッグストア)まで約1分
現況 空室 入居/引渡時期 相談
更新日 2026年2月28日

備考

部屋設備

  • バス・トイレ別
  • 独立洗面台
  • 追い焚き
  • 温水洗浄便座
  • 浴室乾燥機
  • システムキッチン
  • カウンターキッチン
  • 食器洗浄機
  • 浄水器
  • ガスコンロ
  • 床暖房
  • エアコン
  • フローリング
  • 角部屋
  • リノベーション

建物設備

  • エレベーター
  • オートロック
  • 宅配ボックス
  • 防犯カメラ

メナー東大井 7階のローンシミュレーション

借入金額
6,199
頭金
0万円
毎月の返済額
頭金
  • 支払い額万円※半角数字
金利
  • %※半角数字
返済年数
  • ※元利均等返済方式、最大優遇の場合で計算しています。
  • ※融資には個別審査があり、審査結果により、貸出条件(金利・貸出期間・借入額)が異なる場合がございます。
  • ※不動産のご購入に際しましては物件価格以外にその他諸費用が必要となります。
    諸費用に関する詳細につきましてはお問い合わせ下さいませ。

周辺地図

※建物周辺情報はGoogleMapを使用しており、実際とは若干異なる場合がございます。

掲載情報について

  • ※本掲載情報と現況に差異がある場合、現況を優先いたします。
  • ※掲載物件は売却済あるいは売出中止となる場合もあります。
  • ※掲載写真やパース(絵)、または間取図に描かれている家具や車などは、価格に含まれておりません。また、過去に撮影したものをそのまま利用している場合があり、名称・外観・背景等、実際のものとは異なる場合がございます。予めご了承ください。
  • ※仲介物件には所定の仲介手数料(消費税等相当額を含みます)が必要です。
2冠達成 恵比寿不動産は物件数No.1 中古マンション数No.1

メナー東大井 7階の
購入に関するお問い合わせはこちらから

contact us

恵比寿不動産までお気軽にお問い合わせください

お電話でのお問い合わせはこちら:03-6421-0543 10:00 - 19:00 (水曜定休)
恵比寿不動産店舗情報渋谷区東3-25-11 TOKYU REIT恵比寿ビル4階
オフィス内観写真
オフィス外観写真

部屋一覧

売出し待ちお知らせ希望 未公開情報の確認 お問い合わせ
所在階 間取り 専有面積 価格 お気に入り お問い合わせ 詳細
新着
7F
リノベ
1LDK
38.88m2 6,199
お問い合わせ
詳細を見る

最近見た物件

レーベンハイム赤羽西が丘おすすめ画像

レーベンハイム赤羽西が丘 4階

5,598

  • 東京都北区赤羽西6-8-13
  • 都営三田線「本蓮沼駅」徒歩10分
  • 3LDK  62.99m2
東急ドエル・アルス桜木町博物館通りおすすめ画像

東急ドエル・アルス桜木町博物館通り 2階

9,480

  • 神奈川県横浜市中区弁天通6-74
  • JR京浜東北線「桜木町駅」徒歩6分
  • 1SLDK  69.50m2
桜台コーポおすすめ画像

桜台コーポ 7階

4,180

  • 東京都練馬区豊玉北3-1-2
  • 西武池袋線「桜台駅」徒歩6分
    西武有楽町線「新桜台駅」徒歩8分
  • 3LDK  51.67m2
アクサス新宿おすすめ画像

アクサス新宿 4階

3,780

  • 東京都新宿区北新宿1-23-23
  • JR中央・総武線「大久保駅」徒歩7分
    東京メトロ丸ノ内線「西新宿駅」徒歩8分
  • 1K  25.65m2
ナイスアーバン川崎駅前通りおすすめ画像

ナイスアーバン川崎駅前通り 6階

5,999

  • 神奈川県川崎市川崎区貝塚2-1-3
  • JR京浜東北線「川崎駅」徒歩12分
    JR東海道本線(東京~熱海)「川崎駅」徒歩12分
  • 2SLDK  56.65m2