マイキャッスル駒沢公園フロントビュー 5階

  • 総合トップ
  • 中古マンション
  • 一戸建て・土地
  • 投資・収益物件
  • 売りたい[売却査定]
  • 貸したい[賃料査定]

マイキャッスル駒沢公園フロントビュー 5階
新着

価格
1980
毎月の返済額
(目安)
loansimulationIcon
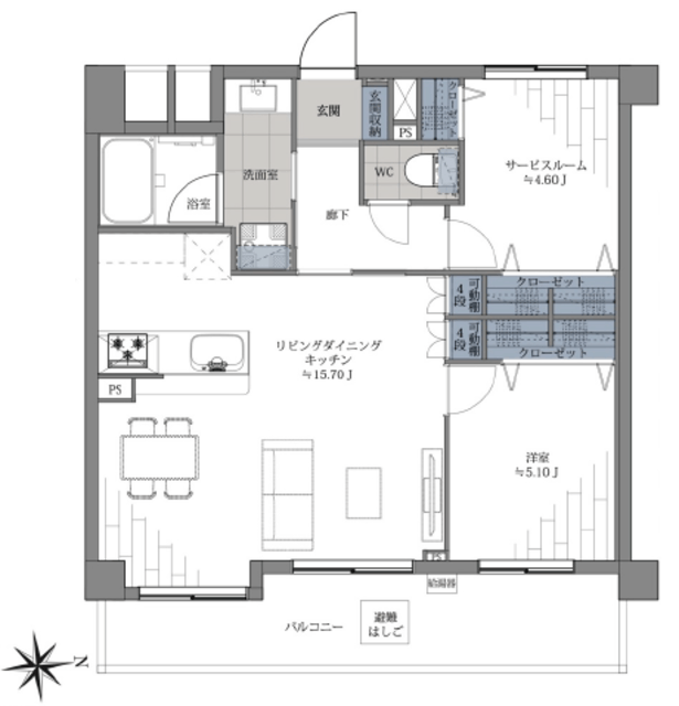
築年月 2000年9月 間取り 1SLDK
専有面積 61.00m2 所在階 5階
方角
所在地 東京都世田谷区駒沢4-12-25
交通 東急田園都市線「駒沢大学駅」徒歩11分

公園のしぜんで四季を楽しめる開けた眺望!駒沢公園西口まで徒歩1分!生活環境の整う「駒沢」に住まう!

【特徴・設備】
■駐車場空き有(2025年12月15日現在)
■安心のオートロック
■5階部分・東向き住戸
■リビングが見渡せる対面式キッチン
■各居室に収納付き、共用スペースにも収納有り
■外観タイル張り
■新規リフォーム物件

【リフォーム内容】※2026年2月中旬頃内装完成予定
□フローリング新規貼替
□ユニットバス新規交換
□洗面化粧台新規交換
□トイレ新規交換
□システムキッチン新規交換
□壁・天井クロス新規交換
□建具・玄関収納新規交換
□給湯器新規交換
□洗濯水栓・防水パン新規交換

2冠達成 恵比寿不動産は物件数No.1 中古マンション数No.1

マイキャッスル駒沢公園フロントビュー 5階の
購入に関するお問い合わせはこちらから

contact us

恵比寿不動産までお気軽にお問い合わせください

お電話でのお問い合わせはこちら:03-6421-0543 10:00 - 19:00 (水曜定休)
恵比寿不動産店舗情報渋谷区東3-25-11 TOKYU REIT恵比寿ビル4階
オフィス内観写真
オフィス外観写真
リフォーム無料お見積りサービス

物件概要

物件名 マイキャッスル駒沢公園フロントビュー
所在地
交通
問合せ番号 15740-502
物件特徴 -
物件条件 -
価格 1980 管理費 11,000円/月
修繕積立金 18,300円/月 その他費用 -
間取り 1SLDK 方角
専有面積 61.00m2 バルコニー面積 10.2m2
建物構造 RC 築年月 2000年9月
総戸数 36戸 総階数 地上8階 
駐車場 有 月額 23,000円〜30,000円 バイク置き場 有 月額 500円〜600円
駐輪場 有 月額 300円 土地権利 所有権
用途地域 第一種低層住居専用地域 管理形態 日勤管理
管理会社 株式会社エム・シー・サービス 分譲会社 -
施工会社 共立建設株式会社 設計会社 -
取引態様 仲介 小学校学区 深沢小学校
周辺情報 ■西友 駒沢店(スーパー)まで徒歩 4分
■まいばすけっと 駒沢4丁目店(スーパー)まで徒歩 4分
■セブンイレブン 世田谷駒澤大学南店(コンビニ)まで徒歩 2分
■トモズ 駒沢店(ドラッグストア)まで徒歩 2分
現況 空室 入居/引渡時期 相談
更新日 2026年2月12日

備考

部屋設備

  • バス・トイレ別
  • 独立洗面台
  • 追い焚き
  • 温水洗浄便座
  • 浴室乾燥機
  • システムキッチン
  • カウンターキッチン
  • 食器洗浄機
  • 浄水器
  • フローリング
  • リノベーション

建物設備

  • エレベーター
  • オートロック
  • 宅配ボックス
  • TVドアホン
  • 駐車場
  • バイク置き場
  • 駐輪場

マイキャッスル駒沢公園フロントビュー 5階のローンシミュレーション

借入金額
1980
頭金
0万円
毎月の返済額
頭金
  • 支払い額万円※半角数字
金利
  • %※半角数字
返済年数
  • ※元利均等返済方式、最大優遇の場合で計算しています。
  • ※融資には個別審査があり、審査結果により、貸出条件(金利・貸出期間・借入額)が異なる場合がございます。
  • ※不動産のご購入に際しましては物件価格以外にその他諸費用が必要となります。
    諸費用に関する詳細につきましてはお問い合わせ下さいませ。

周辺地図

※建物周辺情報はGoogleMapを使用しており、実際とは若干異なる場合がございます。

掲載情報について

  • ※本掲載情報と現況に差異がある場合、現況を優先いたします。
  • ※掲載物件は売却済あるいは売出中止となる場合もあります。
  • ※掲載写真やパース(絵)、または間取図に描かれている家具や車などは、価格に含まれておりません。また、過去に撮影したものをそのまま利用している場合があり、名称・外観・背景等、実際のものとは異なる場合がございます。予めご了承ください。
  • ※仲介物件には所定の仲介手数料(消費税等相当額を含みます)が必要です。
2冠達成 恵比寿不動産は物件数No.1 中古マンション数No.1

マイキャッスル駒沢公園フロントビュー 5階の
購入に関するお問い合わせはこちらから

contact us

恵比寿不動産までお気軽にお問い合わせください

お電話でのお問い合わせはこちら:03-6421-0543 10:00 - 19:00 (水曜定休)
恵比寿不動産店舗情報渋谷区東3-25-11 TOKYU REIT恵比寿ビル4階
オフィス内観写真
オフィス外観写真

部屋一覧

売出し待ちお知らせ希望 未公開情報の確認 お問い合わせ
所在階 間取り 専有面積 価格 お気に入り お問い合わせ 詳細
新着
5F
リノベ
1SLDK
61.00m2 1980
お問い合わせ
詳細を見る

最近見た物件

画像準備中

イトーピア目白カレン 9階

4,680

  • 東京都豊島区目白3-13-5
  • JR山手線「目白駅」徒歩2分
  • 1R  27.20m2