総武中央線「西荻窪」駅徒歩6分!最上階、長期修繕計画書有り!商店街至近の生活便利な住環境!
【特徴・設備】
■オートロック付
■宅配ボックス付
■3階建て最上階
■新規リフォーム物件
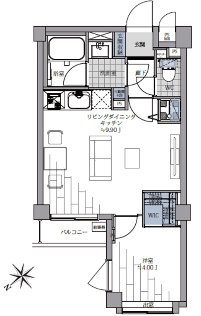
■ウォークインクローゼット
■外壁タイル張り
【リフォーム内容】※2026年2月末内装完成予定
□フローリング新規貼替
□ユニットバス新規交換
□洗面化粧台新規交換
□トイレ新規交換
□建具・玄関収納新規交換
□壁・天井クロス新規交換
□システムキッチン新規交換
□洗濯水栓・防水パン新規交換
□給湯器新規交換





