ザ・クレストシティ パークコート 6階

  • 総合トップ
  • 中古マンション
  • 一戸建て・土地
  • 投資・収益物件
  • 売りたい[売却査定]
  • 貸したい[賃料査定]

ザ・クレストシティ パークコート 6階
新着

価格
8,290
毎月の返済額
(目安)
loansimulationIcon
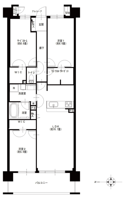
築年月 2005年2月 間取り 2SLDK+WIC
専有面積 84.44m2 所在階 6階
方角 西
所在地 神奈川県川崎市中原区上小田中3-29-2
交通 -

6階部分西向き!2SLDK+2WIC+WTC!リノベーション物件!

【特徴・設備】
■JR南武線「武蔵新城駅」まで徒歩5分
■総戸数638戸のビッグコミュニティ
■フィットネススタジオ、シアタールーム、ゲストルームなど共用設備が充実
■犬・猫2匹まで飼育可(細則あり)
■大容量のウォークインクローゼットとウォークスルークローゼットを完備
■床暖房や1418サイズの浴室、食洗機など、ワンランク上の充実した設備
■スーパー、小学校、総合病院が徒歩圏内に揃う暮らしやすい立地

【リノベーション内容】※2026年4月中旬完了予定
□システムキッチン交換
□ユニットバス交換
□洗面台交換
□トイレ交換
□全室クロス張替
□全フローリング張替
□全建具交換
□CF張替
□下足入れ交換
□洗濯水栓器具交換
□防水パン交換
□スイッチパネル設置
□ダウンライト設置
□照明器具設置
□玄関人感センサー設置

2冠達成 恵比寿不動産は物件数No.1 中古マンション数No.1

ザ・クレストシティ パークコート 6階の
購入に関するお問い合わせはこちらから

contact us

恵比寿不動産までお気軽にお問い合わせください

お電話でのお問い合わせはこちら:03-6421-0543 10:00 - 19:00 (水曜定休)
恵比寿不動産店舗情報渋谷区東3-25-11 TOKYU REIT恵比寿ビル4階
オフィス内観写真
オフィス外観写真
リフォーム無料お見積りサービス

物件概要

物件名 ザ・クレストシティ パークコート
所在地
交通
問合せ番号 15848-653
物件特徴 大規模マンション
物件条件 ペット可
価格 8,290 管理費 16,970円/月
修繕積立金 23,470円/月 その他費用 -
間取り 2SLDK 方角 西
専有面積 84.44m2 バルコニー面積 11.4m2
建物構造 RC 築年月 2005年2月
総戸数 638戸 総階数 地上10階 地下1階
駐車場 有 月額 7,000円〜20,000円 バイク置き場 有 月額 2,000円〜3,000円
駐輪場 有 月額 150円〜250円 土地権利 所有権
用途地域 第一種中高層住居専用地域 管理形態 常駐管理
管理会社 大和ライフネクスト株式会社 分譲会社 株式会社ゴールドクレスト
施工会社 五洋建設株式会社 設計会社 株式会社アアル建築計画
取引態様 仲介 小学校学区 -
周辺情報 ■まいばすけっと武蔵新城駅北(スーパー)まで徒歩 1分
■トライアル西友 武蔵新城店(スーパー)まで徒歩 3分
■セブンイレブン 武蔵新城北口店(コンビニ)まで徒歩 3分
■ツルハドラッグ 新城駅前店(ドラッグストア)まで徒歩 3分
現況 空室 入居/引渡時期 相談
更新日 2026年3月5日

備考

アルコーブ面積 4.20㎡

部屋設備

  • バス・トイレ別
  • 独立洗面台
  • 追い焚き
  • 温水洗浄便座
  • 浴室乾燥機
  • システムキッチン
  • カウンターキッチン
  • 食器洗浄機
  • 浄水器
  • 床暖房
  • ウォークインクローゼット
  • フローリング
  • リノベーション

建物設備

  • エレベーター
  • オートロック
  • 宅配ボックス
  • TVドアホン
  • トランクルーム
  • 駐車場
  • バイク置き場
  • 駐輪場
  • キッズルーム
  • フロントサービス
  • フィットネス
  • ゲストルーム
  • パーティールーム
  • 24時間ゴミ出し可
  • 管理人常駐
  • 防犯カメラ
  • BS
  • CS
  • CATV
  • インターネット
  • ペット可
  • フラット35

ザ・クレストシティ パークコート 6階のローンシミュレーション

借入金額
8,290
頭金
0万円
毎月の返済額
頭金
  • 支払い額万円※半角数字
金利
  • %※半角数字
返済年数
  • ※元利均等返済方式、最大優遇の場合で計算しています。
  • ※融資には個別審査があり、審査結果により、貸出条件(金利・貸出期間・借入額)が異なる場合がございます。
  • ※不動産のご購入に際しましては物件価格以外にその他諸費用が必要となります。
    諸費用に関する詳細につきましてはお問い合わせ下さいませ。

周辺地図

※建物周辺情報はGoogleMapを使用しており、実際とは若干異なる場合がございます。

掲載情報について

  • ※本掲載情報と現況に差異がある場合、現況を優先いたします。
  • ※掲載物件は売却済あるいは売出中止となる場合もあります。
  • ※掲載写真やパース(絵)、または間取図に描かれている家具や車などは、価格に含まれておりません。また、過去に撮影したものをそのまま利用している場合があり、名称・外観・背景等、実際のものとは異なる場合がございます。予めご了承ください。
  • ※仲介物件には所定の仲介手数料(消費税等相当額を含みます)が必要です。
2冠達成 恵比寿不動産は物件数No.1 中古マンション数No.1

ザ・クレストシティ パークコート 6階の
購入に関するお問い合わせはこちらから

contact us

恵比寿不動産までお気軽にお問い合わせください

お電話でのお問い合わせはこちら:03-6421-0543 10:00 - 19:00 (水曜定休)
恵比寿不動産店舗情報渋谷区東3-25-11 TOKYU REIT恵比寿ビル4階
オフィス内観写真
オフィス外観写真

部屋一覧

売出し待ちお知らせ希望 未公開情報の確認 お問い合わせ
所在階 間取り 専有面積 価格 お気に入り お問い合わせ 詳細
新着
6F
リノベ
2SLDK
84.44m2 8,290
お問い合わせ
詳細を見る

最近見た物件

画像準備中

ブライトスクエア 7階

9,380

  • 東京都江東区亀戸6-30-4
  • JR中央・総武線「亀戸駅」徒歩2分
    都営新宿線「西大島駅」徒歩12分
  • 2LDK  61.87m2