新規フルリノベーション!2階部分・西向き!家具・エアコン付!
【特徴・設備】
■2025年6月大規模修繕工事完了済
■2026年2月玄関ドア交換工事完了
■オートロック・宅配ボックスあり
■下階住戸が無いため小さなお子様がいるご家庭も安心
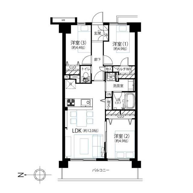
■ファミリーに最適な3LDK
■各居室に収納付き、共用スペースにも収納有り
■アフターサービス保証付き
【リノベーション内容】※2026年2月27日完成
□フローリング、クロス
□洗面、トイレ
□キッチン
□ユニットバス
□建具
□新規エアコン設置(1台)





