ライツ富士見台 3階

  • 総合トップ
  • 中古マンション
  • 一戸建て・土地
  • 投資・収益物件
  • 売りたい[売却査定]
  • 貸したい[賃料査定]

ライツ富士見台 3階
新着

価格
5,599
毎月の返済額
(目安)
loansimulationIcon
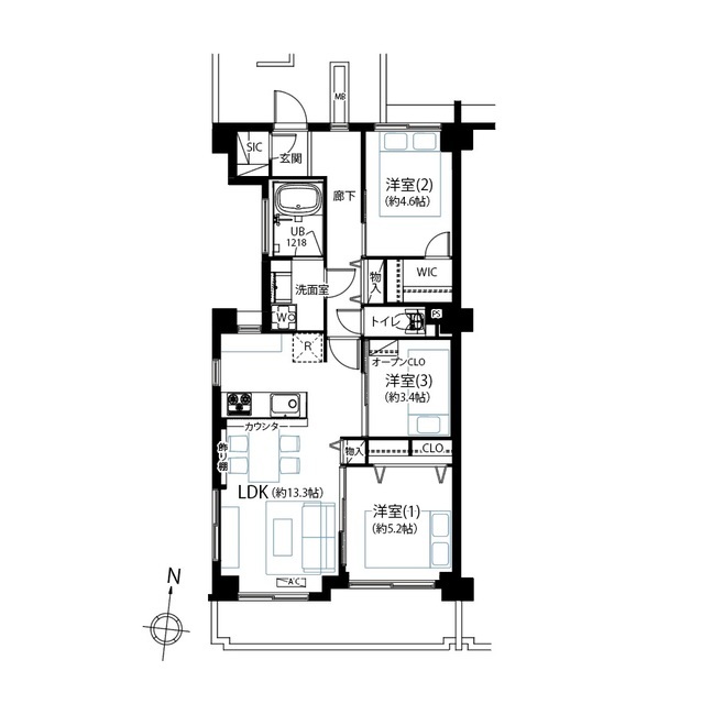
築年月 1990年2月 間取り 3LDK+WIC+SIC
専有面積 64.29m2 所在階 3階
方角
所在地 東京都練馬区貫井1-25-22
交通 西武池袋線「富士見台駅」徒歩6分
西武池袋線「中村橋駅」徒歩9分

南西角部屋につき陽当り・通風良好!新規リノベーション!

【特徴・設備】
■2024年7月大規模修繕工事実施済
■2022年エレベーターリニューアル工事実施済
■オートロックあり
■3LDKファミリータイプ
■ウォークインクローゼット・シューズインクローゼットなど収納豊富
■リビングが見渡せるカウンターキッチン
■新規フルリノベーション
■家具・エアコン付き
■アフターサービス保証付き

【リノベーション内容】※2025年11月3日完成
□床、クロス
□洗面、トイレ
□キッチン 
□ユニットバス
□建具
□新規エアコン設置(1台)

2冠達成 恵比寿不動産は物件数No.1 中古マンション数No.1

ライツ富士見台 3階の
購入に関するお問い合わせはこちらから

contact us

恵比寿不動産までお気軽にお問い合わせください

お電話でのお問い合わせはこちら:03-6421-0543 10:00 - 19:00 (水曜定休)
恵比寿不動産店舗情報渋谷区東3-25-11 TOKYU REIT恵比寿ビル4階
オフィス内観写真
オフィス外観写真
リフォーム無料お見積りサービス

物件概要

物件名 ライツ富士見台
所在地
交通
問合せ番号 15966-301
物件特徴 -
物件条件 -
価格 5,599 管理費 17,360円/月
修繕積立金 19,030円/月 その他費用 ルーフバルコニー使用料:240円/月
間取り 3LDK 方角
専有面積 64.29m2 バルコニー面積 8.03m2
建物構造 RC 築年月 1990年2月
総戸数 32戸 総階数 地上5階 
駐車場 有 月額 20,000円(空無) バイク置き場 -
駐輪場 - 土地権利 所有権
用途地域 準工業地域 管理形態 日勤管理
管理会社 日本ハウズイング株式会社 分譲会社 -
施工会社 多田建設 設計会社 -
取引態様 仲介 小学校学区 -
周辺情報 ■ビッグ・エー練馬貫井店(スーパー)まで徒歩 3分
■TRIAL GO 富士見台駅北店(スーパー)まで徒歩 3分
■ファミリーマート 富士見台駅前店(コンビニ)まで徒歩 4分
■マツモトキヨシ富士見台駅前店(ドラッグストア)まで徒歩 4分
現況 空室 入居/引渡時期 即時
更新日 2026年4月1日

備考

■ルーフバルコニー面積:4.45 ㎡(1.34 坪)
■専用ポーチ面積:4.05 ㎡(1.22 坪)

部屋設備

  • バス・トイレ別
  • 独立洗面台
  • 追い焚き
  • 温水洗浄便座
  • 浴室乾燥機
  • システムキッチン
  • カウンターキッチン
  • 食器洗浄機
  • ガスコンロ
  • エアコン
  • シューズインクローゼット
  • ウォークインクローゼット
  • ルーフバルコニー
  • 角部屋
  • 南向き
  • リノベーション
  • 家具付き

建物設備

  • エレベーター
  • オートロック
  • 駐車場

ライツ富士見台 3階のローンシミュレーション

借入金額
5,599
頭金
0万円
毎月の返済額
頭金
  • 支払い額万円※半角数字
金利
  • %※半角数字
返済年数
  • ※元利均等返済方式、最大優遇の場合で計算しています。
  • ※融資には個別審査があり、審査結果により、貸出条件(金利・貸出期間・借入額)が異なる場合がございます。
  • ※不動産のご購入に際しましては物件価格以外にその他諸費用が必要となります。
    諸費用に関する詳細につきましてはお問い合わせ下さいませ。

周辺地図

※建物周辺情報はGoogleMapを使用しており、実際とは若干異なる場合がございます。

掲載情報について

  • ※本掲載情報と現況に差異がある場合、現況を優先いたします。
  • ※掲載物件は売却済あるいは売出中止となる場合もあります。
  • ※掲載写真やパース(絵)、または間取図に描かれている家具や車などは、価格に含まれておりません。また、過去に撮影したものをそのまま利用している場合があり、名称・外観・背景等、実際のものとは異なる場合がございます。予めご了承ください。
  • ※仲介物件には所定の仲介手数料(消費税等相当額を含みます)が必要です。
2冠達成 恵比寿不動産は物件数No.1 中古マンション数No.1

ライツ富士見台 3階の
購入に関するお問い合わせはこちらから

contact us

恵比寿不動産までお気軽にお問い合わせください

お電話でのお問い合わせはこちら:03-6421-0543 10:00 - 19:00 (水曜定休)
恵比寿不動産店舗情報渋谷区東3-25-11 TOKYU REIT恵比寿ビル4階
オフィス内観写真
オフィス外観写真

部屋一覧

売出し待ちお知らせ希望 未公開情報の確認 お問い合わせ
所在階 間取り 専有面積 価格 お気に入り お問い合わせ 詳細
新着
3F
リノベ
3LDK
64.29m2 5,599
お問い合わせ
詳細を見る